Pest megye, Isaszeg
 

Ingatlan adatai
Irányár: 69 900 000 Ft
Típus: ház
Kategória: eladó
Alapterület: 98 m2
Fűtés: egyéb
Állapota: új
Szobák száma: 5
Építés éve: 2024
Szintek száma: -
Részletes leírás
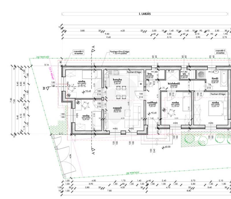
1.es lakás!Egy új, lakóingatlan várja új tulajdonosát Pest megye Isaszeg városában, a Csillag utcában. Az ingatlan alapterülete 97 nm, míg a hozzá tartozó telek mérete 800 nm amely megoszlik, lásd a képek között. Az ingatlan 5 szobával és 1 fürdőszobával rendelkezik, így ideális választás lehet nagyobb családoknak vagy befektetési célokra.Az ingatlan állapota új építésű, így minden berendezés és kialakítás modern és korszerű. A fűtést gázkazán biztosítja, míg a légkondicionáló gondoskodik a kellemes hőmérsékleten belüli tartózkodásról.Az ingatlan 30-as téglából épül melyre 10 centiméteres hőszigetelés fog kerülni, antracit tetőcserép.A kivitelező az alábbi árakkal vállalja a burkolatok választását:Melegburkolat: 3.000.-/nmHidegburkolat: 3.000.-/nmCsapok: 10.000.-/dbA szomszéd telken jelenleg egy romos ház található amely hamarosan lebontásra kerül, és oda is új ingatlan fog épülni.A környék előnyös adottságai közé tartozik a számos zöld terület, konkrétan a hátsó kert az erdő, ahol kellemes sétákat lehet tenni, valamint a környéken található boltok és szolgáltatások, amelyek mindennapi életünket teszik könnyebbé.Ha kérdése merülne fel az ingatlannal kapcsolatban, ne habozzon kapcsolatba lépni velünk. Ügyfeleink bizalmára építünk, így minden kérdésre szívesen válaszolunk. Ne hagyja ki ezt a csodálatos lehetőséget, és legyen Ön az új tulajdonosa ennek a gyönyörű ingatlannak!
További adatok
Telekterület: 800 m2
Kert mérete: 800 m2
Erkély mérete: -
Felszereltség: -
Parkolás: -
Kilátás: udvari
Egyéb extrák:  
-
Hirdető adatai
Hirdető neve: Intor Ingatlan Powered By RH
Kapcsolattartó: Kollár Ábel Gergő
Hirdető telefonszáma: +36 70 412 5808
Honlap: -