Heves megye, Lőrinci
 

Ingatlan adatai
Irányár: 46 500 000 Ft
Típus: ház
Kategória: eladó
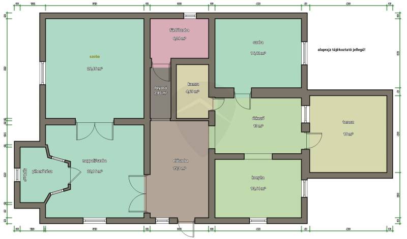
Alapterület: 130 m2
Fűtés: egyéb
Állapota: -
Szobák száma: 3
Építés éve: 1950
Szintek száma: -
Részletes leírás
Lőrinci csendes, barátságos utcájában kínálunk eladásra egy frissen felújított, 130 négyzetméteres, háromszobás lakóingatlant, amely ideális választás családosok számára. Az ingatlan a Bem József utcában helyezkedik el, ahol a nyugalom és a természet közelsége garantált. A 1188 négyzetméteres telek bőséges lehetőséget kínál a szabadidő eltöltésére, legyen szó gyermekek játékáról vagy kertészkedésről.A ház belső tere világos és tágas, a modern dizájn és a praktikus elrendezés minden igényt kielégít. A konyhaszigettel tökéletes helyszín a családi összejövetelek előkészítéséhez, ahol a LED hangulatvilágítás segít megteremteni a kellemes atmoszférát. A három szoba elegendő teret biztosít a család minden tagja számára, míg a felújított fürdőszoba a legújabb trendeknek megfelelően lett kialakítva. A gázkazános fűtés biztosítja a komfortos hőmérsékletet télen is, de lehetőség van vegyes tüzelésre is így Ön és családja mindig otthon érezheti magát.-új vilanyhálozat-új fürdőszoba-új burkolatok- műanyag és fa nyílászáró-beépíthető tetőtér-kerti kút-1/1 tulajdon (azzonal költözhető)-tárolók/melék épület-gyümölcsfák/ tágas udvarA környék előnyei közé tartozik a kiváló közlekedési lehetőség, hiszen Lőrinci könnyen megközelíthető autóval és tömegközlekedéssel egyaránt. A város központja csupán néhány percnyi autóútra található, ahol boltok, éttermek és egyéb szolgáltatások várják Önöket. A közelben található zöld területek és parkok ideális helyszínt biztosítanak a családi kirándulásokhoz, piknikekhez, vagy akár sportoláshoz is. A környék biztonságos és csendes, ami különösen fontos lehet családosok számára, akik a nyugalomra és a biztonságra törekednek.Ez a felújított ingatlan tehát nem csupán egy lakóhely, hanem egy otthon, ahol a család minden tagja megtalálhatja a számára legkedvesebb pillanatokat. Ha bármilyen kérdése van az ingatlannal vagy a vásárlási folyamattal kapcsolatban, ne habozzon, bizalommal keressen minket! Szívesen segítünk Önnek a legjobb döntés meghozatalában, hogy megtalálja álmai otthonát.
További adatok
Telekterület: 1 188 m2
Kert mérete: 1 188 m2
Erkély mérete: 15 m2
Felszereltség: -
Parkolás: -
Kilátás: udvari
Egyéb extrák:  
-
Hirdető adatai
Hirdető neve: Ingatlanmentor powered by Rock Home
Kapcsolattartó: Balog Dávid
Hirdető telefonszáma: +36 70 467 6818
Honlap: -