Pest megye, Gyál
 

Ingatlan adatai
Irányár: 165 000 000 Ft
Típus: ház
Kategória: eladó
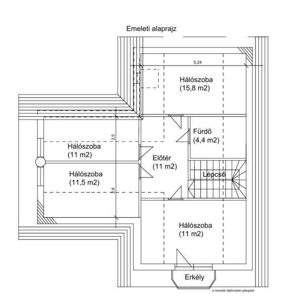
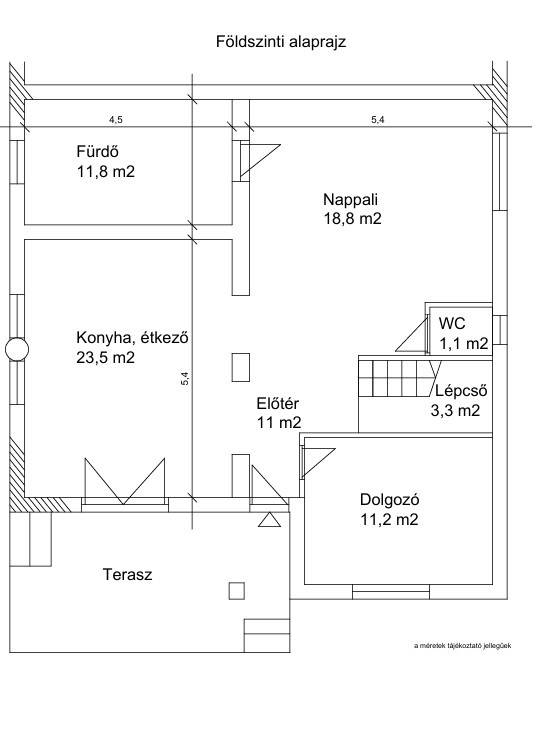
Alapterület: 150 m2
Fűtés: gáz (cirko)
Állapota: -
Szobák száma: 6
Építés éve: 2000
Szintek száma: -
Részletes leírás
Budapest határán Gyálon prémium minőségben teljesen felújított ikerház, szeparált telekkel és saját bejárattal eladó!Eladásra kínálunk egy 2000-ben épült, 2025-ben teljeskörűen, prémium anyagokkal felújított ikerházat Gyál csendes, kertvárosi részén. Az ingatlan nettó 149 m² alapterületű, világos, napfényes terekkel, 5 szobával, nagy konyha-étkezővel és tágas nappalival várja új tulajdonosát.Főbb jellemzők:Fűtés-hűtés: Új kondenzációs gázkazán radiátorokkal és a földszinten minden helyiségben padlófűtéssel. 7 db Gree hőszivattyús klíma (10 év garancia, H-tarifás óra).Energiahatékonyság: Teljes tetőszigetelés (gyapot, párazáró fólia, hőtükör fólia), 7,5 cm homlokzati szigetelés nemes vakolattal, szigetelt aljzat.HET \"B\"Nyílászárók: 3 rétegű Schindler ablakok, új tetőablakok, alsó szinten alumínium elektromos redőnyök, felső szinten manuális redőnyök szúnyoghálóval.Közművek és hálózat: Teljes villanyhálózat-, vízvezeték- és csatornarendszer csere, szabványosított villanyóra (3 fázis), internet és koax minden helyiségben, külső világítás, konnektorok kiépítése. Elektromos autó töltési lehetőség (220V, 3,6 kW) .Belső kialakítás: Egyedi gipszbeton lépcső (50 év garanciával), új beltéri ajtók , rejtett világítás és spotvilágítás a földszinten.Burkolatok: Carrara márvány hidegburkolatok, valamint magas minőségű melegburkolatok.Konyha: Egyedileg gyártott, gépesített konyhabútor az árban.Tető: 3 éves, szinte új cserép, friss bádogozás, új eresz.Az ingatlan teljesen elszeparált telekkel és saját bejárattal rendelkezik, így kiváló választás családoknak, akik nyugodt, modern, energiatakarékos otthont keresnek.Amennyiben felkeltettem érdeklődését, kérem hívjon bizalommal, akár hétvégén is!
További adatok
Telekterület: 283 m2
Kert mérete: 283 m2
Erkély mérete: 17 m2
Felszereltség: -
Parkolás: -
Kilátás: -
Egyéb extrák:  
-
Hirdető adatai
Hirdető neve: Otthon Centrum
Kapcsolattartó: Ravasz Katalin
Hirdető telefonszáma: +36 70 469 3516
Honlap: -