Hajdú-Bihar megye, Debrecen
 

Ingatlan adatai
Irányár: 298 000 000 Ft
Típus: ház
Kategória: eladó
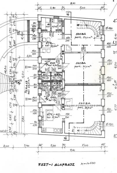
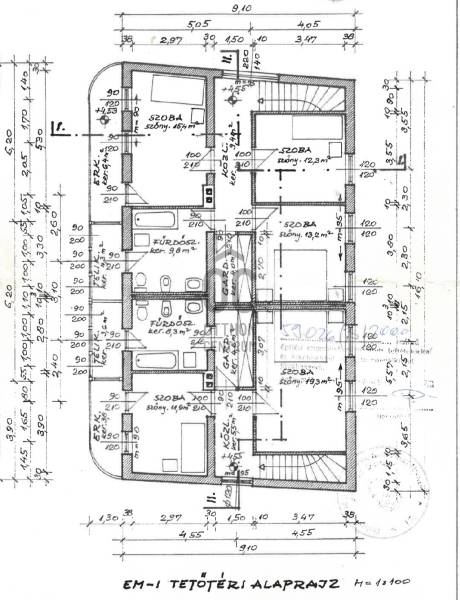
Alapterület: 232 m2
Fűtés: gáz (cirko)
Állapota: -
Szobák száma: 8
Építés éve: 2001
Szintek száma: -
Részletes leírás
Debrecen Óvárosában, csendes utcában, 2001-ben 38 cm-es Porotherm téglából 5 cm-es szigeteléssel épült, gázcirkós, hőszigetelt fa nyílászárós, klímás, 232 nm-es kétgenerációs családi ház 25 nm-es terasszal 554 m2-es telken eladó. A házban egy 130 és egy 102 nm nettó alapterületű lakás lett kialakítva külön gázkazánnal. Az udvaron kültéri garázs,a szuterén szinten egy 30 nm-es garázs és egy 85 nm-es helyiség található. A ház kisebb átalakítással egységesíthető.
További adatok
Telekterület: 554 m2
Kert mérete: 554 m2
Erkély mérete: 25 m2
Felszereltség: -
Parkolás: -
Kilátás: -
Egyéb extrák:  
-
Hirdető adatai
Hirdető neve: Otthon Centrum
Kapcsolattartó: Visi Ferenc
Hirdető telefonszáma: +36 70 388 5216
Honlap: -