Pest megye, Fót
 

Ingatlan adatai
Irányár: 89 900 000 Ft
Típus: ház
Kategória: eladó
Alapterület: 99 m2
Fűtés: elektromos
Állapota: új
Szobák száma: 3
Építés éve: 2025
Szintek száma: -
Részletes leírás
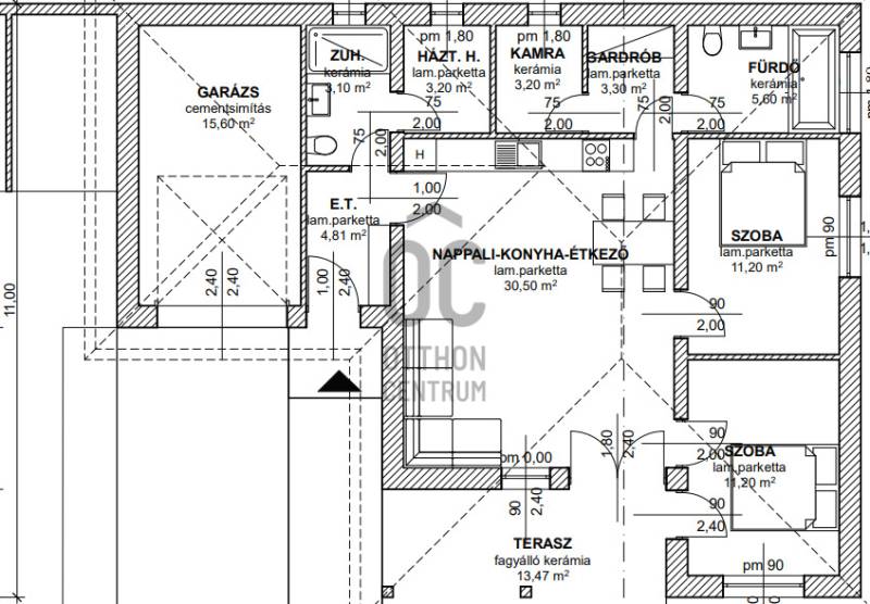
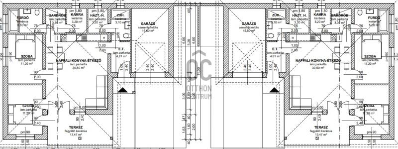
KIEMELT AJÁNLAT!Kiváló referenciákkal!A fényképeken korábban értékesített referenciák láthatók. A látványtervek és a telekről készült képek mutatják a jelenlegi ingatlant.ÚJONNAN ÉPÜLŐ LAKÓPARKBAN, a Waldorf iskolától 2 utcára épül ez az ÚJÉPÍTÉSŰ IKERHÁZ.Egymással mindössze egy tárolónál érintkezve, teljesen SZEPARÁLT KERTRÉSZEKKEL.A helyiek által kedvelt CSENDES, ZÖLD UTCÁBAN, KITŰNŐ MINŐSÉGBEN készül, 460 m2 saját telken.Itt biztosan megtalálja a nyugalmat, aki arra vágyik.Ezen a területen nincsenek és nem is lesznek látható kábelek, ez egy rendezett, újonnan épülő lakópark.Az épület 40cm vastag fallal épül, műanyag nyílászárókkal 3 rétegű hőszigetelt üvegezéssel, Terrán Zenit Resistor Onix tetőcserép fedéssel, hőszivattyú kiállással, padlófűtéssel, napelem-, riasztó-, és klímaelőkészítéssel, illetve egy klíma egységgel a nappaliban.A hálószobákba laminált padló, a többi helyiségbe járólap kerül, de ez most még igény szerint módosítható.A FŰTÉSE és a FENNTARTÁSA KEDVEZŐ, a korábbi referenciákkal kapcsolatos tapasztalatok alapján a TELJES HAVI REZSI legfeljebb 40-45 ezer forint, és napelemmel REZSIMENTES tud lenni az ingatlan.Napelem beszerzését és kedvezményes beszerelését az ár megbeszélés alapján tartalmazhatja.Fúrt kút is található a telken, bemért, iható vízzel.Csatorna kiépítése után az utca és a környék is aszfaltozva lesz.Az építés jelenleg is zajlik, ezért a BURKOLATOKAT Ön még KIVÁLASZTHATJA, igényeit megadhatja, így a lehető legjobb időben van.Az egyik fél már elkelt, a másik még elérhető.Nettó 99 m2 lakótér, nappali+2 szoba, 2 fürdőszoba és garázs.Igény szerint a garázs még kérhető szobaként, akkor nappali+3 hálószobás lesz az ingatlan, ebben az esetben egy fedett, viacolorozott autóbeállót is tartalmaz az ár.10 percen belül szinte minden elérhető: busz, ovi, suli, boltok posta, cukrászda, virágos, gyógyszertár, benzinkút, stb.ÁTADÁS 2026. május 31-ig, igény szerint hamarabb.Minimum 10 % foglalóval és 20% önerővel LEKÖTHETŐ.CSOK, Hitel, Babaváró és illeték visszatérítés igényelhető rá.Nagyon jó választás mind az ingatlan, mind a lokáció.Hívjon bizalommal a hét bármely napján!Amennyiben saját ingatlanja eladásához a mi irodánkat választja, ezt minőségi szolgáltatások és kedvező feltételek mellett vállaljuk.Az ingatlan CSOK igénybevétele esetén illetékmentes!CSOK, Babaváró, Lakásfelújtás, Támogatott hitelek? Irodánk minden állami támogatás és lakáshitel igény kapcsán DÍJMENTES és SZAKÉRTŐ segítséget nyújt!Igény szerint profi ügyvédi hátteret is biztosítunk.
További adatok
Telekterület: 400 m2
Kert mérete: 400 m2
Erkély mérete: 13 m2
Felszereltség: -
Parkolás: -
Kilátás: -
Egyéb extrák:  
-
Hirdető adatai
Hirdető neve: Otthon Centrum
Kapcsolattartó: Sebestyén Nikoletta
Hirdető telefonszáma: +36 70 388 5511
Honlap: -