Pest megye, Gyál
 

Ingatlan adatai
Irányár: 149 900 000 Ft
Típus: ház
Kategória: eladó
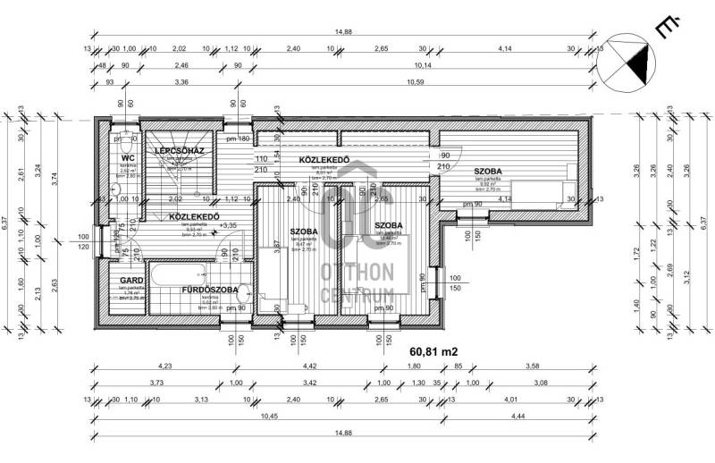
Alapterület: 161 m2
Fűtés: -
Állapota: új
Szobák száma: 5
Építés éve: 2025
Szintek száma: -
Részletes leírás
Eladó újépítésű családi ház Gyálon! Alapterület:nettó 161 m2, bruttó 216m2Szobák száma: 4 szoba + nappali-konyha Oldalhatárra épített, emeletes családi ház rendezett környéken.Műszaki tartalom (részlet)- falazata 30-as Porotherm tégla 15 cm-es szigeteléssel, lábazat 12 cm XPS szigetelés- válaszfalak 10 cm-es tégla- hőszivattyús padlófűtés- 3 rétegű külső nyílászárók, antracit szürke kivitelben-toló-bukó teraszablak-Elektromos redőny, - hideg-, meleg burkolatok, szaniterek belső nyílászárók választhatók- 1 klíma a nappaliban, további klíma kiállás minden helyiségben.-elektromos garázsajtó és kettő elektromos kapu -Riasztó- és kamerarendszer kiállás, -külső homlokzati világítás,- autóbeálló viakolorral burkolva.-Napelem előkészítés - 3x25 amper Az alaprajz tájékoztató jellegű!Egyedi kívánságok figyelembevételével:A ház építkezésének készenléti állapotától függően lehetőség van egyedi igények megvalósítására, AKÁR a már kész részek átalakítására,felár fejében, burkolatok, szaniterek és beltéri ajtók választására, így otthona még inkább az Ön egyéni ízlésére szabható.Teljes műszaki leírás és dokumentáció rendelkezésre áll, kérésre szívesen megküldöm.Jelenlegi készültségi szint: A falazásnál tartanakAz ár kulcsrakész állapotra vonatkozik.Átadás várható ideje: 2026.03.30.osztatlan közös ügyvédi megosztás.Ne hagyja ki ezt a kivételes lehetőséget!Hívjon a hét bármelyik napján, hogy megismerje közelebbről ezt a kiváló, minden igényt kielégítő családi házat!További információval örömmel állok rendelkezésére.
További adatok
Telekterület: 449 m2
Kert mérete: 449 m2
Erkély mérete: -
Felszereltség: -
Parkolás: -
Kilátás: -
Egyéb extrák:  
-
Hirdető adatai
Hirdető neve: Otthon Centrum
Kapcsolattartó: Tóthné Simon Emőke
Hirdető telefonszáma: +36 70 412 4346
Honlap: -