Veszprém megye, Tihany
 

Ingatlan adatai
Irányár: 189 900 000 Ft
Típus: nyaraló
Kategória: eladó
Alapterület: 104 m2
Fűtés: elektromos
Állapota: új
Szobák száma: 2+3
Építés éve: 2025
Szintek száma: -
Részletes leírás
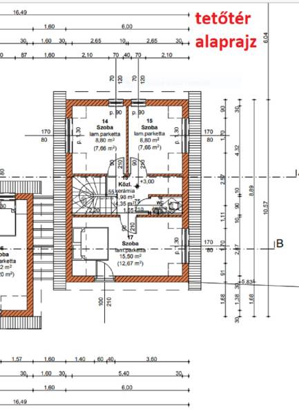
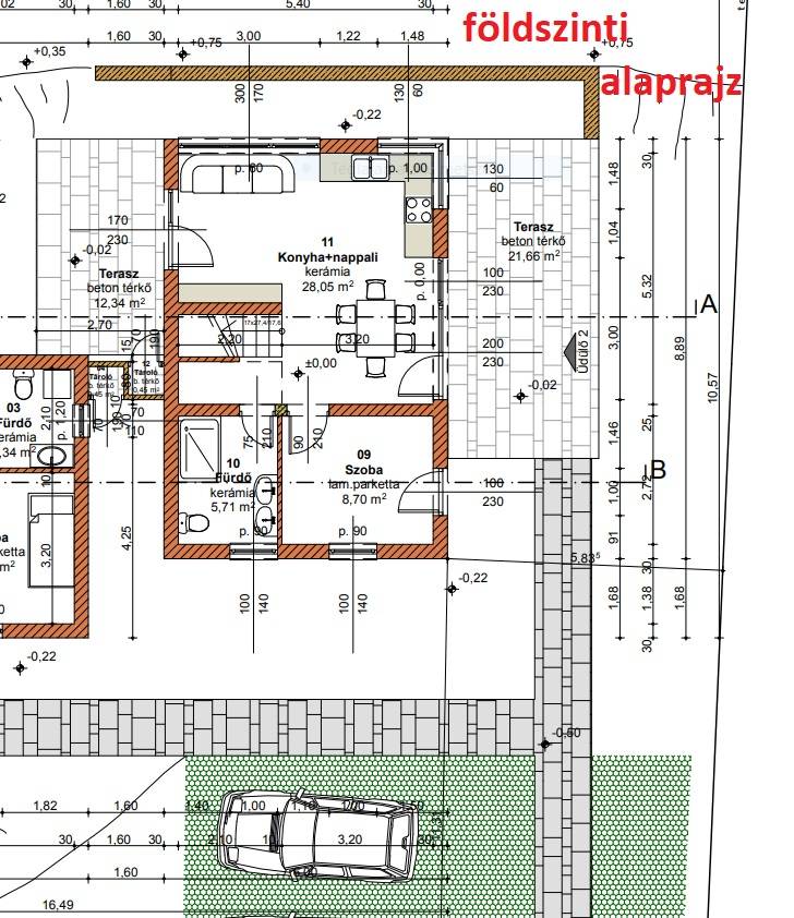
TIHANYBAN ÚJ ÉPÍTÉSŰ IKERHÁZFÉL - NYARALÓ ELADÓTihany Gödrös település részén kínáljuk eladásra ezt az új építésű, 104 m2 alapterületű, belső két szintes ikerházat, 250 m2-es saját használatú kertrésszel és autóbeállóval, amely a 100 m2-es közös területen kerül kialakításra.A 720 m2-es teljes telek területen két, egymástól jól elkülönített ház áll, amelynek nincs közös fala, a két épületet egy kis tárolóhelyiség köti össze. A két épület 6,00 x 8,96 m befoglaló alapterületű, egymástól tartószerkezetileg független, földszintes+ tetőteres, magas tetős, kétegységes üdülőépület, amely két család számára megfelelő térkapcsolatokkal rendelkezik. Helyiségei: a földszinten amerikai konyhás nappali, melyhez egy 21 m2-es és egy 12 m2-es terasz kapcsolódik, egy hálószoba, egy zuhanyzós fürdőszoba + WC, az emeleten pedig 1+2 hálószoba, háztartási helyiség és egy WC található.Az emeleti ablakból a Balaton víztükre is megcsillan a távolban.A jelenlegi készültség lehetővé teszi új tulajdonosa számára, hogy rövid időn belül használatba tudja venni az ingatlant. Műszaki tartalom: - fűtése: elektromos padlófűtés, a melegvíz ellátást elektromos bojler biztosítja - falazat: Porotherm Klíma 30 cm vtg. égetett kerámia N+F téglafalazat (monolit vasbeton lemezfödém) - tetőszerkezet: 42 fokos fa szerkezetű nyeregtető, Creaton Domino kerámia tetőcserép fedéssel -nyílászárók: műanyag szerkezetű, fa erezetes, barna színű homlokzati nyílászárók kerülnek beépítésre, 3 rétegű hőszigetelő üvegezéssel - klíma kiállások és a napelem előkészítése az új tulajdonos rendelkezésére állElhelyezkedése: a gödrösi szabadstrand 1 km-re, rövid sétával elérhető, buszmegálló 1,3 km, faluközpont, Apátság 1,8 km távolságra.Az ingatlan adásvételekor budapesti lakás beszámítása lehetséges.Tihany Magyarország egyik legszebb fekvésű települése, látványos táji és természeti adottságokban bővelkedő község a Balatonba nyúló Tihanyi-félszigeten. Nemcsak a táj szépsége, de a falu varázslatos hangulata és történelmi emlékei is vonzóvá teszik Tihanyt a turisták számára. Építész- és ingatlanközvetítő irodánk minden hiteles szakmai segítséget meg tud adni, mellyel segíteni tudjuk döntését.Kérje az ingatlan részletes tájékoztató anyagát!Kövesse Balatoniingatlanguru facebook és balatoni_ingatlanguru instagram oldalunkat.Balatoni ingatlanguru – több mint közvetítő
További adatok
Telekterület: 260 m2
Kert mérete: 260 m2
Erkély mérete: 33 m2
Felszereltség: -
Parkolás: -
Kilátás: -
Egyéb extrák:  
-
Hirdető adatai
Hirdető neve: Balatoni Ingatlanguru
Kapcsolattartó: Margit Molnár
Hirdető telefonszáma: +36707412457
Honlap: -