Pest megye, Fót
 

Ingatlan adatai
Irányár: 58 000 000 Ft
Típus: ház
Kategória: eladó
Alapterület: 82 m2
Fűtés: elektromos
Állapota: felújítást igényel
Szobák száma: 2+2
Építés éve: 1949
Szintek száma: -
Részletes leírás
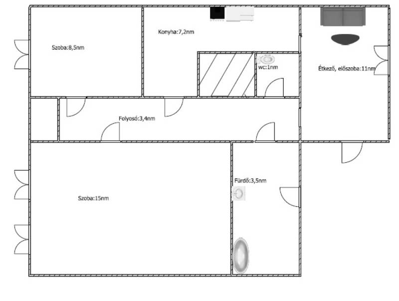
ÁRCSÖKKENÉS!A HÁZ NEM HITELEZHETŐ, csak készpénzes vevőket várunk. Fót kertvárosi részén ELADÓ egy felújítandó 82 nm-es, tégla építésű, családi ház, cc. 300 nm-es telekkel. Az alap épülethez, egy előszobát és egy garázst építettek hozzá, illetve beépítésre került a tetőtér.Jelenleg az alsó szinten,egy előszoba, konyha, fürdőszoba, külön wc, és két szoba található.A felső szinten két szoba lett kialakítva.2022-ben részleges felújítások történtek a házon, ezek többek között a következők:- teljes vízvezeték, vízhálózat csere- részleges villanyvezeték cseréje, illetve bővítése- nyílászárók cseréje az alsó szinten megtörtént, a felső szint teljes felújítást igényel.- 2 db hűtő-fűtő klíma felszerelése(jelenleg ez szolgáltatja a fűtést is)- új ARISTON villanybojler felszerelése, mely a fürdőszobában és a konyhában is szolgáltatja a meleg vizet.A rendezett telken egy ásott, gyűrűs kút szolgál a kert locsolására.Parkolás az udvaron két autóval lehet, a ház előtt három autó is elfér. PER ÉS TEHER MENTES!Közlekedés kiváló: Buszközlekedés Budapest felé:Buszok: 318, 308, 314,315,autóval: M2, M0, M3, valamint 5 perces sétára Fót vasútállomás, mellyel 30 perc a Nyugati pu.Közelben bevásárlási lehetőségek, 500 méterre, óvoda, iskola, kis játszótér, kosárlabda pálya, orvosi rendelők.Ez az ingatlan remek választás lehet azok számára, akik saját ízlésük szerint szeretnék felújítani és alakítani új otthonukat.A TÖBBÉVES SZAKMAI TAPASZTALATON TÚL - AZ ALÁBBIAKBAN TÁMOGATJUK MÉG AZ ADÁSVÉTELT:- Megbízható ügyvédi háttér- Energetikai tanúsítvány- INGYENES, BANKFÜGGETLEN hitelügyintézés (megtaláljuk Önnek a legjobb konstrukciót)- Állami támogatások: CSOK+, Babaváró támogatás.Hívjon, akár hétvégén is!
További adatok
Telekterület: 286 m2
Kert mérete: 286 m2
Erkély mérete: -
Felszereltség: -
Parkolás: -
Kilátás: udvari
Egyéb extrák:  
-
Hirdető adatai
Hirdető neve: GDN Ingatlanhálózat
Kapcsolattartó: Béres Tünde
Hirdető telefonszáma: +36-20-402-6896
Honlap: -