Zala megye, Tótszerdahely
 

Ingatlan adatai
Irányár: 39 900 000 Ft
Típus: ház
Kategória: eladó
Alapterület: 220 m2
Fűtés: gáz (konvektor)
Állapota: -
Szobák száma: 6
Építés éve: 1980
Szintek száma: -
Részletes leírás
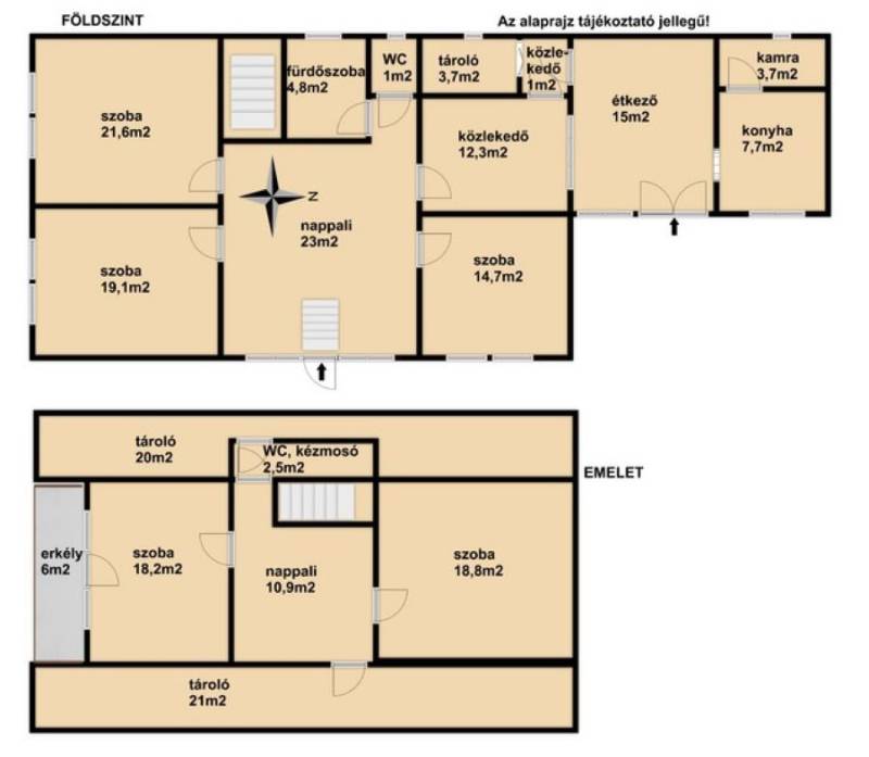
Tótszerdahely Nagykanizsától 23 km-re délnyugatra, a 7-es főútvonaltól 5 km-re, a horvát határtól 5km-re található. A falutól 1 km-re folyik a Mura folyó,valamint a közeli 3 hektáros Szerdahely tó a horgászturizmus kedvelt célpontja.A községet É-D-i irányban a Borsfa patak szeli át.Tótszerdahely dinamikusan fejlődő mintegy 1200 fős település,posta,iskola,óvoda, bolt működik a községben. Tágas, két szintes, tetőtér-beépítéses 220m2-es családi ház 1209m2-es bekerített telekkel, nyári konyhával, pincével, garázzsal, gazdasági épületekkel várja új tulajdonosát.Az 1980-ban épült lakóház helyiségei: 5 hálószoba, 2 nappali, közlekedők, kettő külön WC, fürdőszoba, étkező, konyha, tárolók, kamra, terasz, erkély, verandaA falak B30-as hőszigetelt téglával lettek megépítve beton alapra. A tető szép állapotú, síkpala fedésű, A földszinti utcafronti hálószobák 2025-ben friss festést és LED világítást kaptak. A szobákban parketta található, míg a konyha- étkező, fürdő-WC, Zalakerámia padlóburkolattal van ellátva.A konyha és a fürdőszoba 2008-ban került felújításra. A szobák közül három, redőnnyel ellátott szigetelt üvegezésű műanyag ablakot kapott, a többi nyíjászáró fából készült.A fűtésről gázkonvektorok, egy cserépkályha és egy fatüzelésű kályha gondoskodnak.Összközműves: víz, villany, gáz, csatorna bekötve. Ipari áram is be van kötve.A kertben található kút, cseresznyefa, barackfa és számos melléképület.Az ingatlan elhelyezkedése kiváló: közvetlen közelben óvoda és iskola (horvát nyelvoktatással), a falu legnagyobb élelmiszerboltja, a posta és a templom található. Két buszmegálló mindössze 50 méterre van.A nagy kert ideális állattartásra, veteményes kialakítására vagy családi összejövetelekre. A faluban egész évben pezseg az élet: híres rétesfesztivál, közösségi programok és barátságos szomszédok várják az új tulajdonost.A környék különleges értéke, hogy számos híres gyógyfürdő található a közelben: Lenti, Letenye, Hévíz, Zalakaros, Kehidakustány és mindössze 60 km-re a Balaton is elérhető.Ez a ház nem csupán falak és tető – itt gyerekek nőttek fel, itt íródtak családi történetek, most pedig készen áll, hogy új otthona legyen egy szerető családnak.Irodánk teljes körű szolgáltatást nyújt kereső ügyfeleinknek.Szakszerű tanácsadással, hitel ügyintézéssel, energetikai tanúsítvány elkészítésével és kedvező díjszabású ügyvéddel nyújtunk segítséget!
További adatok
Telekterület: 1 209 m2
Kert mérete: 1 209 m2
Erkély mérete: 15 m2
Felszereltség: -
Parkolás: -
Kilátás: -
Egyéb extrák:  
-
Hirdető adatai
Hirdető neve: Otthon Centrum
Kapcsolattartó: Rimai Loretta
Hirdető telefonszáma: +36 70 461 9081
Honlap: -