Pest megye, Veresegyház
 

Ingatlan adatai
Irányár: 147 250 000 Ft
Típus: ház
Kategória: eladó
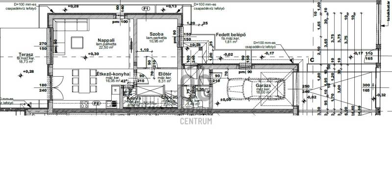
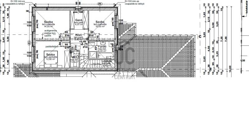
Alapterület: 120 m2
Fűtés: -
Állapota: új
Szobák száma: 5
Építés éve: 2025
Szintek száma: -
Részletes leírás
LeírásÚJ ÉPÍTÉSŰ IKERHÁZ VERESEGYHÁZ LEGJOBB RÉSZÉNSAJÁT KERT, megújuló energia, alacsony fenntartás.Veresegyház kiemelten jó lokációjában, kedvelt, családias részén eladó két darab belső kétszintes, összesen 128,7m²-es ikerházfél, saját garázzsal (22,24 m²) és 500 m²-es saját telekrésszel. Teljes mértékben pakolható padlástér. Az ikerházak csak a garázsnál érnek össze, így a privát élettér teljesen zavartalan.Főbb jellemzők:Nettó lakóterület / db: 128,7 m² + 22,24 m² garázs4 hálószoba + nappaliFedett külső tároló: 2,53 m²Saját 500 m²-es kert minden házfélhezBelső elrendezés igény szerint módosíthatóHőszivattyús fűtési rendszer (padlófűtéssel)Elektromos redőny előkészítésKlíma kiállás minden szobábanNapelem előkészítésMagas minőségű szigetelés és nyílászárókModern, energiatakarékos kialakításÁtadás várhatóan: 2026 április végénMegbízható, kiemelkedő referenciákkal és nagy múlttal rendelkezőkivitelező, rugalmas feltételek! Hívását hétvégén is fogadom! Irodánk teljes körű ügyintézéssel várja!
További adatok
Telekterület: 960 m2
Kert mérete: 960 m2
Erkély mérete: 17 m2
Felszereltség: -
Parkolás: -
Kilátás: -
Egyéb extrák:  
-
Hirdető adatai
Hirdető neve: Otthon Centrum
Kapcsolattartó: Mózes Adrienne
Hirdető telefonszáma: +36 70 388 6211
Honlap: -