Részletes leírás
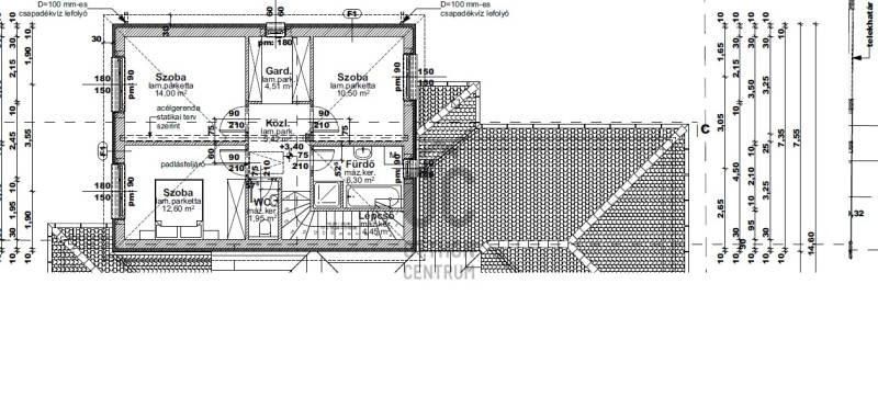
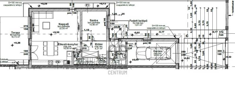
LeírásÚJ ÉPÍTÉSŰ IKERHÁZ VERESEGYHÁZ LEGJOBB RÉSZÉNSAJÁT KERT, megújuló energia, alacsony fenntartás.Veresegyház kiemelten jó lokációjában, kedvelt, családias részén eladó két darab belső kétszintes, összesen 128,7m²-es ikerházfél, saját garázzsal (22,24 m²) és 500 m²-es saját telekrésszel. Teljes mértékben pakolható padlástér. Az ikerházak csak a garázsnál érnek össze, így a privát élettér teljesen zavartalan.Főbb jellemzők:Nettó lakóterület / db: 128,7 m² + 22,24 m² garázs4 hálószoba + nappaliFedett külső tároló: 2,53 m²Saját 500 m²-es kert minden házfélhezBelső elrendezés igény szerint módosíthatóHőszivattyús fűtési rendszer (padlófűtéssel)Elektromos redőny előkészítésKlíma kiállás minden szobábanNapelem előkészítésMagas minőségű szigetelés és nyílászárókModern, energiatakarékos kialakításÁtadás várhatóan: 2026 április végénMegbízható, kiemelkedő referenciákkal és nagy múlttal rendelkezőkivitelező, rugalmas feltételek! Hívását hétvégén is fogadom! Irodánk teljes körű ügyintézéssel várja!