Pest megye, Pécel
 

Ingatlan adatai
Irányár: 95 900 000 Ft
Típus: ház
Kategória: eladó
Alapterület: 101 m2
Fűtés: gáz (cirko)
Állapota: új
Szobák száma: 3+1
Építés éve: 2025
Szintek száma: -
Részletes leírás
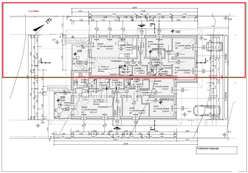
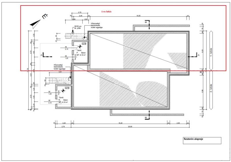
CSAK NÁLUNK!Pécel, kedvelt Levendulás lakóparkjában, eladó egy nettó 101,46 m², bruttó 110,56 m² alapterületű, 2 lakásos lakóépület 1-es lakása. A lakásokat, aszfaltos úton lehet megközelíteni. Az építkezés, várhatóan 2025 november közepén kezdődik. A 101,46 m²-es lakótérben 3 szoba + nappali szoba biztosít kényelmes életteret a jövőbeli lakóknak. A házhoz tartozik egy ~508 m²-es saját kert, ami tökéletes helyszín családi és baráti összejövetelekhez. A 11,28 m²-es teraszról ( alatta 9,1 m²-es tároló) gyönyörű kilátás nyílik a környező tájra.A lakások szimmetrikus belső elrendezéssel kerültek megtervezésre, földszintes kialakítással, illetve részleges szuterén beépítéssel. A lakások az oldalkerti homlokzatok közepén lévő bejáratokon közelíthetők meg.Rövid műszaki tartalom:- Az épület földszinti és emeleti külső határoló falai 30 cm vastag Porotherm 30 X-Therm falazó blokkból, úgynevezett klíma téglából készülnek. - A külső körítő falak külső oldalai 15 cm grafitos EPS (H 80) hab hőszigetelő vakolatot kapnak. - A tetőtér hőszigetelése, fújt hőszigetelő hab, kb. 45 cm vastag kőzetgyapotnak fele meg. - A válaszfalak 10 N+F Porotherm válaszfal lapokból falazott 10 cm vastag falszerkezetek.- A külső nyílászárók, fehér színben gyártott műanyag 3 rétegű, hőszigetelő üvegezéssel ellátottak (U= 0,9 W/m2K) ablakok lesznek.- A meleg víz ellátást és a fűtést gáz kondenzációs kazán biztosítja majd, padlófűtés hűleadással. Az alternatív fűtésről és hűtésről, KLÍMA fog gondoskodni. A tervezet áram kapacitás 3 x16 A lesz. Felár ellenében H-tarifás óra kérhető!Helységlista: - Földszint:- 4,48 m² belépő ,- 7,59 m² közlekedő, - 12,12 m² szoba I.,- 11,68 m² szoba II. ,- 12,25 m² szoba III., - 4,80 m² fürdő, - 1,44 m² WC,- 3,68 m² gardrób, - 3,27 m² háztartási helység,- 31,03 m² nappali,- 9,12 m² konyha étkező- ----------------- 101,46 m² Nyitott terasz 11,28 m²A terasz alatt szuterén tároló 9,10 m² lesz.A kert durva tereprendezéssel lesz átadva. Műszaki tartalom:-Hideg burkolat 6.000 Ft/m²-Meleg burkolat 5.000 Ft/m²-Szaniterek 200.000 Ft-ig -Beltéri ajtók 60.000 Ft, kilinccsel együtt /dbMagasabb árú építőanyag választás esetén a különbözetet a Vevő finanszírozza.Az ár tartalmazza még: - H-tarifa óra előkészítését, az órát és a dobozt nem. - Kapumozgató elektronika előkészítését, - Riasztó előkészítését.A berendezések kiépítése opcionálisan, plusz pénzért megrendelhetők. A belső VÁLASZFALAK, MÉG MÓDOSÍTHATÓK!A Kivitelező a műszaki tartalom változtatás jogát fenntartja, az előírt energetikai előírások figyelembe vételével. A Cég számos referenciával rendelkezik. Komoly érdeklődés esetén szívesen mutatunk referenciát!Ne hagyja ki ezt a lehetőséget, legyen Ön az új ikerház tulajdonosa Pécelen!Finanszírozás 10 + 10 % önerő. Várható átadás: 2026 III. -IV. né. JÖJJÖN el, NÉZZE meg, SZERESSEN bele!A GV HitelCentrum, KÖTELEZETTSÉG MENTESEN és DÍJMENTESEN, versenyezteti Önért a bankok hitelajánlatait. Ismerje meg a vissza nem térítendő állami támogatásokat!* Egyedi, bankfiókban nem elérhető kamat- és díjkedvezmények.* Ingyenes Hitelképesség vizsgálat.* Idő, energia és pénz megtakarítás.* Teljes hivatali ügyintézés.* Babaváró.* CSOK+* Hitel.* Megtakarítás,* és EGYÉB BANKI tranzakcióban segítségére lehetünk!• Igény esetén, ÜGYVÉDI segítséget nyújtunk, MEGFIZETHETŐ áron!Ha az ingatlannal kapcsolatban bővebb felvilágosításra lenne szüksége, hívjon bizalommal, állok rendelkezésére!F.M.
További adatok
Telekterület: 508 m2
Kert mérete: 508 m2
Erkély mérete: 11 m2
Felszereltség: -
Parkolás: -
Kilátás: kertre néző
Egyéb extrák:  
-
Hirdető adatai
Hirdető neve: GDN Ingatlanhálózat
Kapcsolattartó: Fenyvesi Marianna
Hirdető telefonszáma: +36-20-981-3790
Honlap: -