Budapest, II.kerület
Vérhalom utca 

Ingatlan adatai
Irányár: 109 200 000 Ft
Típus: lakás (tégla)
Kategória: eladó
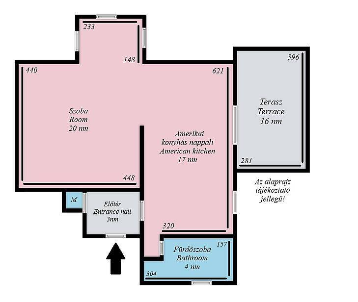
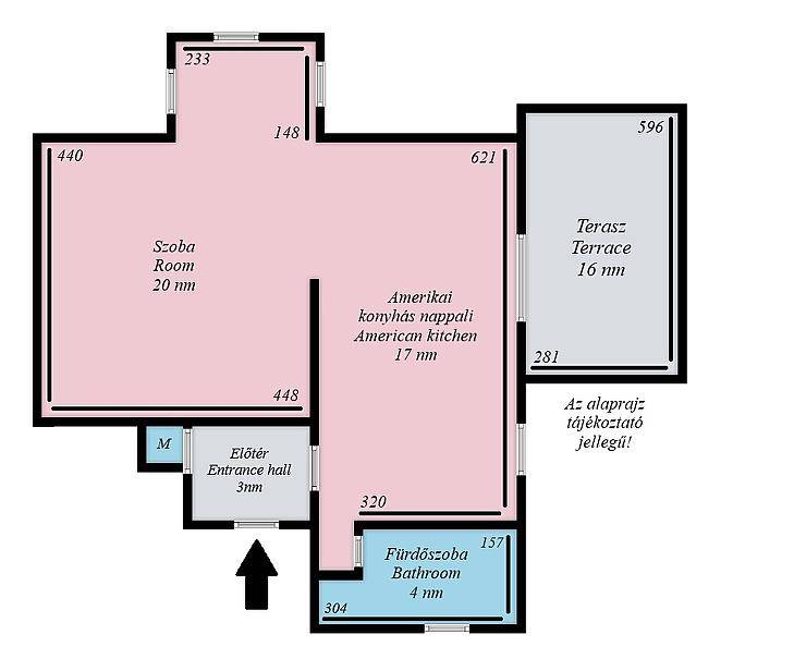
Alapterület: 44 m2
Fűtés: gáz (cirko)
Állapota: felújított
Szobák száma: 1
Építés éve: 1930
Szintek száma: -
Részletes leírás
Budapest II. kerületének egyik legkedveltebb részén, a Vérhalom téren kínálunk megvételre egy stílusosan felújított, földszinti lakást. Az ingatlan egy csendes, zöldövezeti utcában található, így ideális választás mindazoknak, akik nyugodt környezetre vágynak, ugyanakkor nem szeretnének lemondani a belváros közelségéről sem.A 44 m²-es lakás praktikus, modern elrendezésű, amerikai konyhás nappalija egy 16 m²-es saját teraszhoz kapcsolódik, amely egy nagy, zöld kerttel nyújt közvetlen kapcsolatot – tökéletes helyszín reggelihez, pihenéshez vagy baráti beszélgetésekhez. A gondozott kert saját használatú, és igény esetén gépkocsibeálló is kialakítható benne, ami a környéken különösen értékes előny.Az ingatlan 2019-ben teljes körű felújításon esett át, azóta is kiváló állapotban van, így új tulajdonosa akár azonnal költözhet. A lakás minden részletében a minőséget és a kényelmet szolgálja. Padlófűtés gondoskodik a kellemes hőérzetről, melyet egy modern Remeha gázkazán biztosít. A nyári hónapokra klímaberendezés kínál komfortos hőmérsékletet. Az elektromos redőnyökkel felszerelt ablakok és a teraszajtó a kényelmet és a biztonságot is növelik. A lakásban külön mosóhelyiség került kialakításra, továbbá beépített bútorok és kiépített hangtechnika teszi teljessé az otthonérzetet. A biztonságról riasztórendszer gondoskodik, a terasz növényeit pedig automata öntözőrendszer segíti életben tartani.Ez a lakás tökéletes választás lehet első otthonnak, pároknak vagy befektetési célra is – elhelyezkedése, minősége, kertkapcsolata és a gépkocsi-beállási lehetőség miatt is ritka lehetőség a piacon.
További adatok
Telekterület: -
Kert mérete: -
Erkély mérete: -
Felszereltség: -
Parkolás: -
Kilátás: kertre néző
Egyéb extrák:  
-
Hirdető adatai
Hirdető neve: MPD Hungary Kft.
Kapcsolattartó: Mille-Case Kft.
Hirdető telefonszáma: +3613361706
Honlap: -