Budapest, XVI.kerület
 

Ingatlan adatai
Irányár: 59 900 000 Ft
Típus: lakás (tégla)
Kategória: eladó
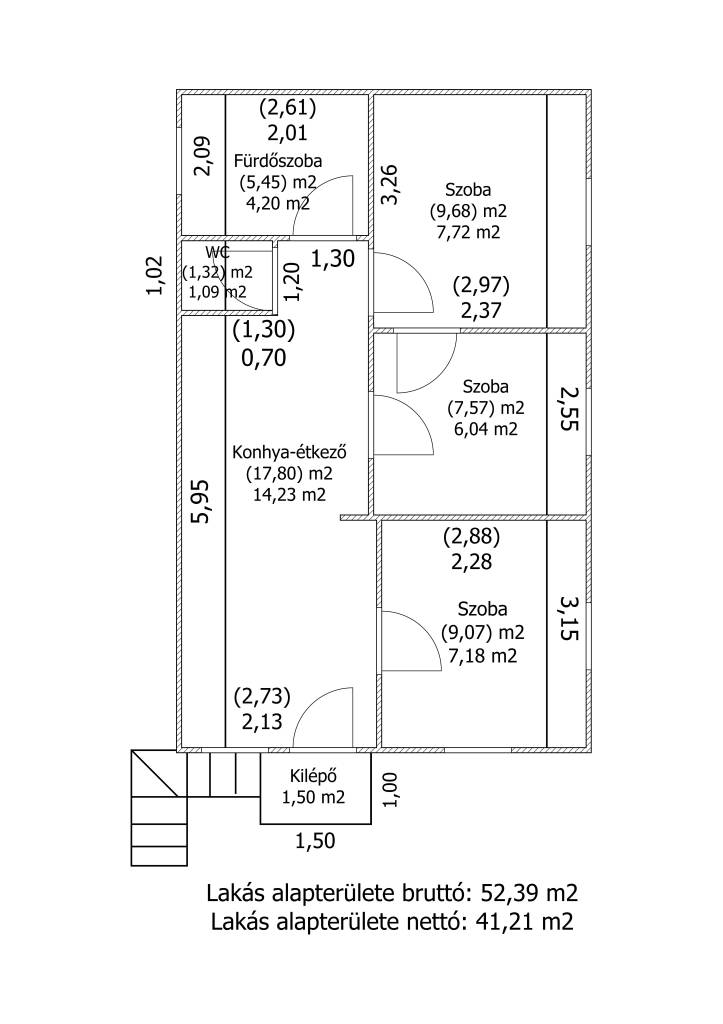
Alapterület: 42 m2
Fűtés: gáz (cirko)
Állapota: -
Szobák száma: 1+3
Építés éve: 1999
Szintek száma: 1
Részletes leírás
Panorámás tetőtéri lakás kertvárosi nyugalomban!Eladó egy világos, tégla építésű családi ház tetőterében található lakás, csodás panorámával. A lakás 3 félszobás, nagy konyhás-étkezővel, külön fürdővel és WC-vel. Az ingatlan a XVI. kerület csendes, kertvárosi részén a Hermina úton található.A fűtésről korszerű gáz kondenzációs kazán gondoskodik. Az ingatlan jelenleg közepes állapotú, így kiváló lehetőség, ha saját ízlésed szerint újítanád fel és alakítanád át.A lakás egy háromépületes telken helyezkedik el, hivatalosan külön választva, használati és bírósági végzéssel szétválasztva, saját kert nem tartozik hozzá.Közlekedés & környék-Nyugodt utcák, alacsony forgalom-Kiváló tömegközlekedés-Szolgáltatások és boltok a közelben-Díjmentes parkolás az utcánKinek ajánlott?Tökéletes választás, ha pároddal vagy egyedül nyugodt otthont keresel, de befektetőknek is szuper lehetőség: könnyen és jó áron kiadható a környéken.Jelen állapotában az ingatlan nem hitelezhető, így készpénzes vásárlók hívását várom!Ha szeretné megtekinteni az ingatlant, hívjon bizalommal!
További adatok
Telekterület: -
Kert mérete: -
Erkély mérete: 2 m2
Felszereltség: -
Parkolás: -
Kilátás: panorámás
Egyéb extrák:  
-
Hirdető adatai
Hirdető neve: GDN Ingatlanhálózat
Kapcsolattartó: Kutas József
Hirdető telefonszáma: +36-20-960-9602
Honlap: -