Pest megye, Gyál
 

Ingatlan adatai
Irányár: 249 990 000 Ft
Típus: ház
Kategória: eladó
Alapterület: 264 m2
Fűtés: -
Állapota: új
Szobák száma: 6
Építés éve: 2025
Szintek száma: -
Részletes leírás
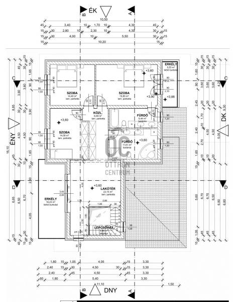
Eladó Gyálon egy két szintes luxus családi ház!Világos, modern otthon, amely ideális nagycsaládosoknak és azoknak, akik a nagy tereket szeretik!Telek méret: 750 m2Ingatlan méretei: Nettó 264 m2, bruttó 285,79 m2Szintek száma: 2Szobák: 4 hálószoba, alsó és felső szinten is nappaliFürdőszobák: 4 fürdőszoba + WCTerasz: 21,2 m2Erkély: 16,23 m2 + 7,53 m2Főbb helyiségek:Konyha: 12,96 m2Nappali: 58,95 m2 + 23,15 m2Háztartási helyiség: 5,04 m2Előszoba: 8,7 m2Gardrób: 6,4 m2Szobák: 14,58 m2; 14,4 m2; 19,8 m2: 14,4m2Közlekedő: 8,48 m2Fürdőszobák: 11,61 m2; 7,68 m2; 6,75 m2; 5,44 m2Műszaki jellemzők:30-as Leier falazat 15 cm szigeteléssel, lábazat 10cm XPS szigetelésBelső falak: 10 cm Leier téglábólFödém: 20 cm kőzetgyapot szigetelésHőszivattyú + padlófűtés3 rétegű, energiatakarékos külső nyílászárókVálasztható klíma: nappali vagy komplett kiállás minden szobábanElektromos kapu, napelem előkészítésKamerarendszer, riasztó beépítveElektromos redőny szúnyoghálóvalModern világítás az egész házbanMinden helyiségben klímaKerti világításAz ingatlan ára a kulcsrakész állapotra vonatkozik!Ide már csak költözni kell!!!! 30% önerővel lefoglalhatja Várható átadás: 2025. 12. 31.Segítünk a finanszírozásban (független hitelszakértő), ügyvédi háttér garantált!Érdeklődjön még ma, és találja meg új otthonát a legjobb feltételekkel!Hívjon a hét bármely napján további információért!
További adatok
Telekterület: 663 m2
Kert mérete: 663 m2
Erkély mérete: 37 m2
Felszereltség: -
Parkolás: -
Kilátás: -
Egyéb extrák:  
-
Hirdető adatai
Hirdető neve: Otthon Centrum
Kapcsolattartó: Tóthné Simon Emőke
Hirdető telefonszáma: +36 70 412 4346
Honlap: -