Szabolcs-Szatmár-Bereg megye, Vásárosnamény
 

Ingatlan adatai
Irányár: 33 000 000 Ft
Típus: ház
Kategória: eladó
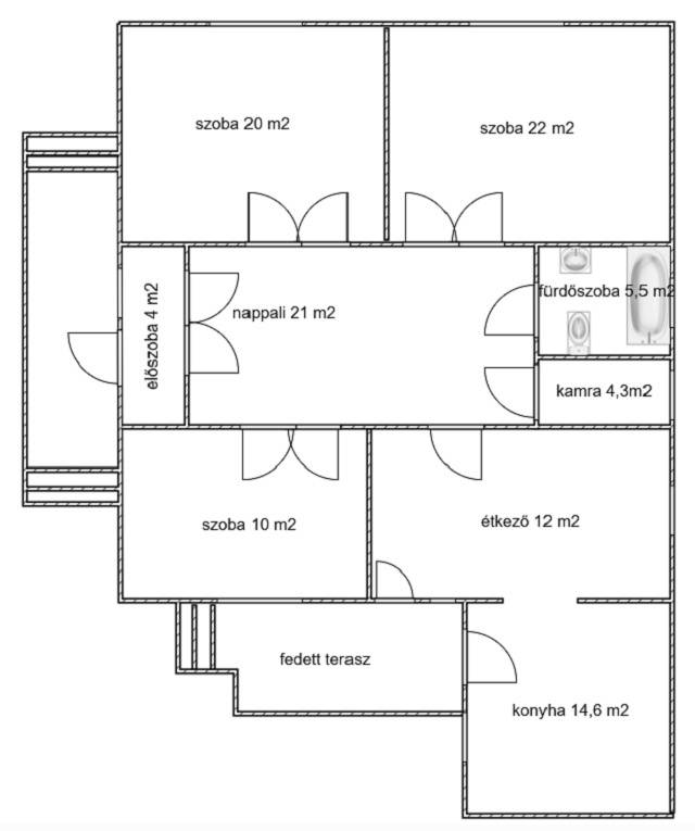
Alapterület: 113 m2
Fűtés: gáz (konvektor)
Állapota: -
Szobák száma: 3
Építés éve: 1970
Szintek száma: -
Részletes leírás
Eladó Vásárosnaményban, ez a jó állapotú családi ház. Az ingatlan alapterülete nettó 113 négyzetméter, amely tökéletes otthont nyújt családok számára. A ház három tágas szobával és egy nappalival rendelkezik, amelyek napfényesek és barátságosak, így garantáltan otthonos légkört biztosítanak. A fürdőszoba praktikus elrendezésével és modern megoldásaival kényelmet nyújt minden lakónak. Az ingatlanhoz tartozik egy 8 négyzetméteres terasz is, ahol kellemes nyári estéken pihenhet. A telek mérete 711 négyzetméter, amely lehetőséget biztosít a szabadban való tevékenységekre, kertészkedésre, vagy akár egy kis játszótér kialakítására is. A garázs egy autó számára kínál helyet, így a parkolás sosem okoz majd gondot. A fűtés gázkonvektorral megoldott. A környék csendes és biztonságos, ideális választás családok számára. A közlekedési lehetőségek is kiemelkedőek, hiszen a város jól megközelíthető autóval és tömegközlekedéssel egyaránt. A jó állapotú ház és a környék előnyei garantálják, hogy ez a lehetőség nem marad sokáig nyitva. Kérdéseivel bizalommal forduljon hozzánk, szívesen segítünk Önnek a vásárlási folyamatban, és válaszolunk minden felmerülő kérdésére. Ne habozzon, lépjen velünk kapcsolatba, és tapasztalja meg ezt a nagyszerű ingatlant személyesen!
További adatok
Telekterület: 711 m2
Kert mérete: 711 m2
Erkély mérete: 8 m2
Felszereltség: -
Parkolás: -
Kilátás: -
Egyéb extrák:  
-
Hirdető adatai
Hirdető neve: Otthon Centrum
Kapcsolattartó: Gyöngyösi Sándor
Hirdető telefonszáma: +36 70 469 3486
Honlap: -