Budapest, XXII.kerület
 

Ingatlan adatai
Irányár: 119 000 000 Ft
Típus: ház
Kategória: eladó
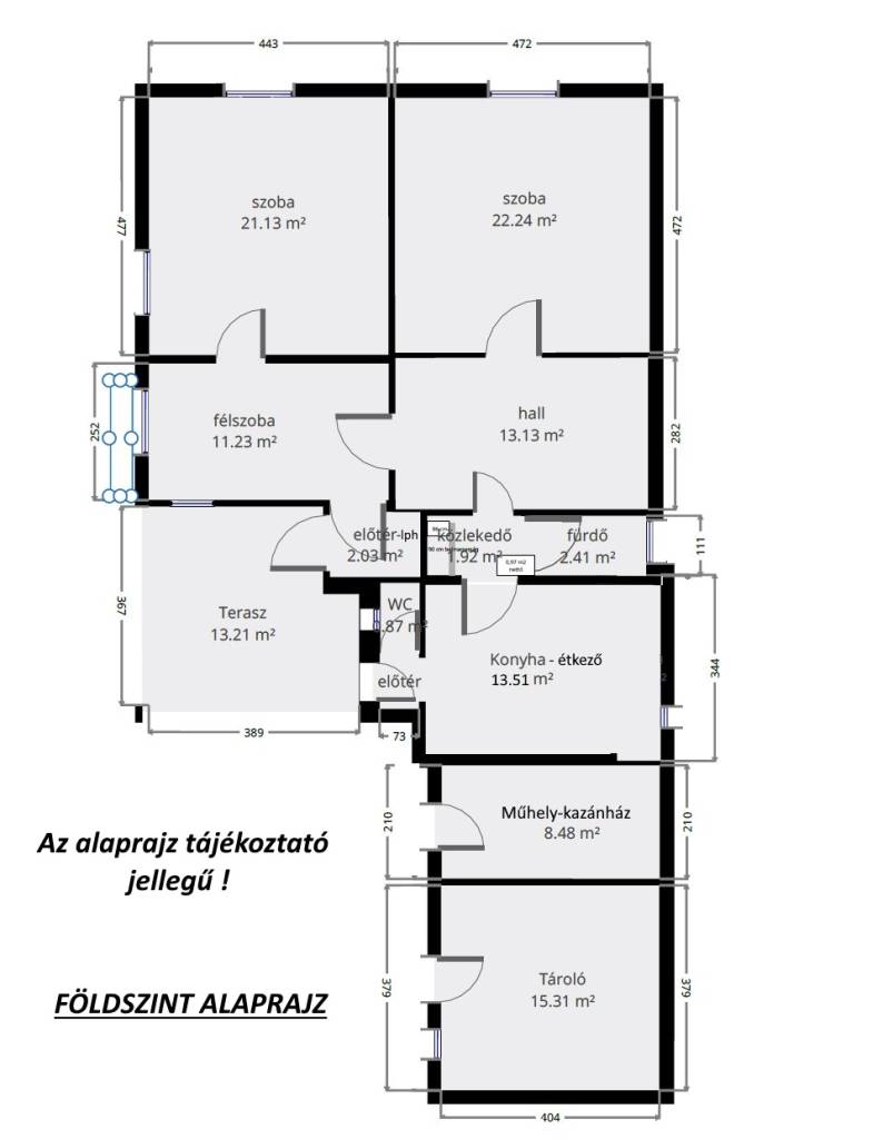
Alapterület: 135 m2
Fűtés: gáz (cirko)
Állapota: -
Szobák száma: 5
Építés éve: 1995
Szintek száma: -
Részletes leírás
CSAK AZ IRODÁNK KÍNÁLATÁBAN, MOST NAGYON KEDVEZŐ ÁRON! FONTOS KIEMELNI: a budai oldalon illetve a pesti oldalon is, de leginkább a VI. illetve a VII. kerületben a tulajdonosok LAKÁST vagy LAKÁSOKAT BESZÁMÍTHATNAK a vételárba, további részletekkel kapcsolatban kérem keressenek! XXII. kerület Nagytétény egyik csendes kertvárosi részén a Hunyadi utcában, zöldövezeti környezetben eladásra kínálok egy igény szerint akár többfunkciós családi házat, amely kialakításának köszönhetően akár két különálló lakóegységként is használható.Az ingatlan építési éve 1968 illetve 1995-ben került kibővítésre, legutóbbi műszaki és esztétikai felújítása pedig 2020-ban történt.Méretek és elrendezés az alaprajzon látható, tájolása: K-D-Ny.A közel 900 m²-es telek gondozott, gyümölcsfákkal beültetett kerttel rendelkezik, ahol többféle növény – például mandula, birs, füge és szőlő – is megtalálható. Az ingatlan teljes közművel ellátott, parkolás az udvarban lehetséges 2 db. autó számára, de akár több autó számára is megoldható/bővíthető.A földszinti lakótérben két nagy méretű szoba, egy közlekedő, egy zuhanyzós fürdőszoba, külön WC, valamint egy konyha található, amelyből közvetlen kijárat nyílik a fedett teraszra, illetve további 2 db. helyiség is van amely hall funkciót illetve a másik helyiség pedig télikert vagy dolgozó / félszoba kialakítási lehetőséget is biztosíthat, jelenleg pihenő részként funkciónál. A közlekedőből nyíló hallban egy kandalló gondoskodik a kellemes komfortról-hangulatról. Az emeletre az előtérből vezet fel a lépcső, ahol két további szoba, egy konyha és egy fürdőszoba kapott helyet. A tetőtéri részben további plusz szoba kialakítására is van lehetőség a fürdőszoba mellett, jelenleg egy légtér ( padlástér) .Az udvarban különálló épületrészben található egy műhely és egy tárolóhelyiség. A fűtést és melegvíz-ellátást egy modern, kondenzációs gázkazán biztosítja, amely a műhelyben került elhelyezésre. A tároló igény szerint felújítható, és akár önálló lakófunkcióval is bővíthető. A kertben található továbbá egy pince is, amely jelenleg átalakítás/felújítás alatt áll.A közlekedés kiváló: buszmegálló néhány perc sétára, vasútállomás gyalogosan is elérhető, ahonnan a belváros gyorsan megközelíthető. Autóval az M0 és M6 csomópont pár perc alatt elérhető, a környéken több bevásárlóközpont ( Campona, Auchan, Lidl, Aldi ) és közintézmény (orvosi rendelő, gyógyszertár, játszótér, sportpálya) is megtalálható.Az ingatlan két villanyórával rendelkezik, így könnyedén megosztható akár két különálló lakásra is. Ideális választás lehet nagycsaládosoknak vagy többgenerációs családoknak, összeköltözőknek vagy befektetőknek, akik értékelik a nyugodt környezetet és a rugalmas térkihasználást.Az ingatlan részletes ismertetése és bemutatása előre egyeztetett időpontban lehetséges, amelyet nagyon rugalmasan kezelünk, akár HÉTVÉGÉN is.További kérdéseivel kapcsolatban várom a jelentkezését.Amennyiben Önnek a vásárláshoz szüksége lenne hitelre, babaváró kölcsönre, lakástakarékra, stb., kezdeményezheti a kapcsolatfelvételt bankfüggetlen hitelügyintézőinkkel, teljesen DÍJMENTESEN.Közel 25 év szakmai tapasztalattal rendelkezem, eladó vagy kiadó ingatlana értékesítése vagy bérbeadása esetén, készséggel állok az Ön rendelkezésére is, keressen bizalommal.
További adatok
Telekterület: 895 m2
Kert mérete: 895 m2
Erkély mérete: -
Felszereltség: -
Parkolás: -
Kilátás: kertre néző
Egyéb extrák:  
-
Hirdető adatai
Hirdető neve: GDN Ingatlanhálózat
Kapcsolattartó: Nyegrutz Tamás
Hirdető telefonszáma: +36-30-560-5587
Honlap: -