Somogy megye, Balatonszabadi
 

Ingatlan adatai
Irányár: 94 900 000 Ft
Típus: ház
Kategória: eladó
Alapterület: 98 m2
Fűtés: -
Állapota: új
Szobák száma: 4
Építés éve: 2025
Szintek száma: -
Részletes leírás
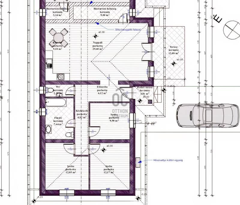
Balaton közeli újépítésű otthon – Modern ikerház saját kerttel és zöld panorámával Balatonszabadiban.Ha egy olyan ingatlanra vágyik, amely ötvözi a modern építészetet, a korszerű technológiát és a természet közelségét, akkor most megtalálta.Balatonszabadi csendes, nyugodt részén kínáljuk megvételre ezt a 2025-ben épülő, földszintes ikerházat, amely ideális választás családoknak, pároknak vagy akár befektetési céllal vásárlóknak is.Kialakítás és belső terekA nettó 98,38 m²-es lakótér minden szeglete a kényelmet szolgálja. Az ingatlanban:Világos, nagy nappali-konyha-étkező kapott helyet, amely közvetlen kijárattal kapcsolódik a 14 m²-es fedett teraszhoz – tökéletes tér családi és baráti összejövetelekhez.Három külön nyíló hálószoba biztosítja a privát szférát minden családtag számára.Egy tágas fürdőszoba WC-vel, különálló vendég-WC kézmosóval, valamint egy praktikus háztartási helyiség teszi igazán élhetővé a mindennapokat.Az átgondolt alaprajznak köszönhetően minden helyiség kényelmesen használható, jól berendezhető, és természetes fényben úszik.Külső adottságok és környezetAz ingatlanhoz tartozik egy 353 m²-es saját kert, amely ideális játszótér a gyerekeknek, helyet adhat egy hangulatos kerti sütögetőnek, medencének, vagy akár saját kis konyhakertnek is. A déli tájolás garantálja a napfényt, a teraszról pedig a zöldre néző panoráma nyújt nyugodt, pihentető látványt.Műszaki tartalom és előnyökBruttó alapterület: 112,37 m²4 külön nyíló szobaÉpítés éve: 2025Energiatakarékos hőszivattyús fűtés (levegő-víz rendszer) – alacsony rezsiköltség, fenntartható működésYtong falazat – kiváló hőszigetelő és időtálló szerkezetDélnyugati tájolás – világos, napfényes otthon egész napFöldszintes kialakítás – kényelmes, akadálymentes közlekedésMiért különleges ez az ingatlan?Mert a Balaton közelsége (pár perc autóval) ötvöződik a csendes, természetközeli környezettel.Mert a modern építési technológia és a korszerű fűtési rendszer hosszú távon is értékállóvá és gazdaságossá teszi.Mert egy szintre tervezve, nagy terasszal és saját kerttel igazi családi otthonná válhat.Befektetők figyelem...A Balaton közelsége és a település nyugodt hangulata miatt ez az ingatlan kiválóan alkalmas nyaralóként vagy kiadásra is. A környék turisztikai vonzereje és az új építés biztosítja a folyamatos keresletet – így nemcsak otthonként, hanem jövedelmező befektetésként is tökéletes választás.Finanszírozási lehetőségMost különösen jó időszak a vásárlásra: az ingatlan 3%-os hitellel is megvásárolható, ami rendkívül kedvező konstrukció, és hosszú távon óriási előnyt jelent a finanszírozásban.Ez az ingatlan több mint egy ház – egy olyan élettér, ahol a kényelmes mindennapok és a természet harmóniája találkozik.Ne hagyja ki ezt a lehetőséget...Foglalja le új otthonát időben, és legyen Ön az , aki birtokba veheti ezt a modern, energiatakarékos, balatoni közeli ikerházat.
További adatok
Telekterület: 706 m2
Kert mérete: 706 m2
Erkély mérete: 14 m2
Felszereltség: -
Parkolás: -
Kilátás: -
Egyéb extrák:  
-
Hirdető adatai
Hirdető neve: Otthon Centrum
Kapcsolattartó: Bezzeg Nikoletta
Hirdető telefonszáma: +36 70 716 8431
Honlap: -