Budapest, XVIII.kerület
Bókaytelep 

Ingatlan adatai
Irányár: 83 990 000 Ft
Típus: lakás (újépítésű)
Kategória: eladó
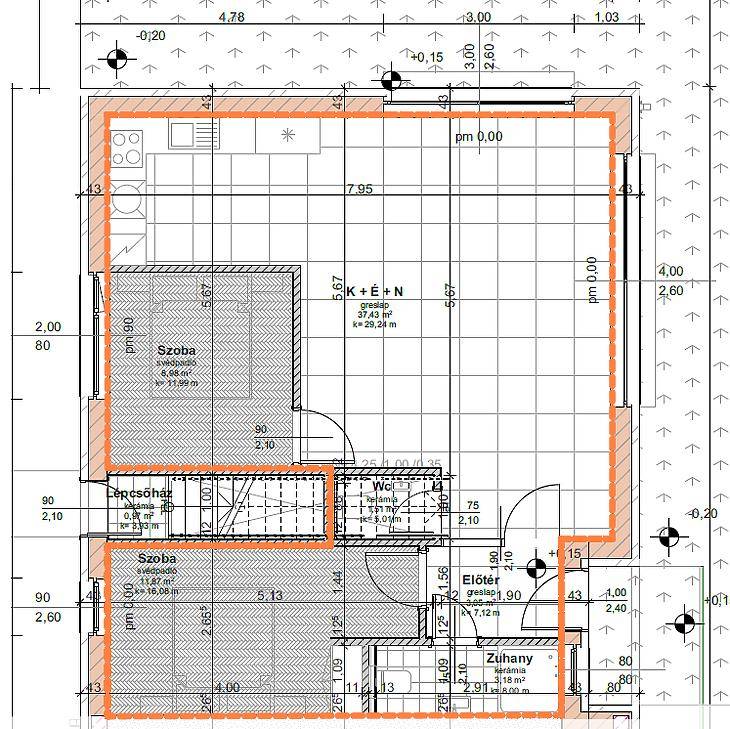
Alapterület: 69 m2
Fűtés: egyéb
Állapota: új
Szobák száma: 2+1
Építés éve: 2026
Szintek száma: -
Részletes leírás
ÚJ ÉPÍTÉSŰ, ENERGIATAKARÉKOS OTTHONOK A XVIII. KERÜLETBEN, BÓKAYTELEPENKiváló közlekedési adottságokkal rendelkező, csendes mellékutcában kínálunk eladásra négy, külön bejáratú, új építésű lakást. Az ingatlan egy kétlakásos ikerházként épül, azonban használati megállapodással 4 önálló, szeparált lakás kerül kialakításra.Főbb jellemzők:• nappali + étkező + amerikai konyha• lakásonként saját garázs az épületben, vagy felszíni kocsibeálló• saját kertrész/terasz használati megosztás alapján• hőszivattyús fűtés-hűtés, padlófűtéssel és fan-coil rendszerrel• 3 rétegű nyílászárók, redőny és szúnyogháló előkészítés• riasztó előkészítés, kaputelefonBelső kialakítás:A burkolatok, szaniterek és beltéri ajtók katalógusból választhatók meghatározott értékhatárig, így a vevő saját igényeihez alakíthatja új otthonát.Műszaki tartalom:• vasbeton és tégla szerkezet• 12–17 cm homlokzati szigetelés, 40 cm födémszigetelés• prémium anyagok, első osztályú kivitelezés• alacsony fenntartási költség, modern megoldásokElhelyezkedés:• csendes mellékutca, mégis jó közlekedéssel• közel iskola, óvoda, LIDL, OTP, gyógyszertár, orvosi rendelő• gyorsan elérhető a belváros, Határ úti M3 metró 15 perc az 50-es villamossalA lakáshoz opcionálisan megvásárolható garázs 5.500.000 Ft összegben, vagy felszíni kocsibeálló 1.500.000 Ft összegben.Az ingatlan jelenleg 30-40%-os készültségi szinten áll, az átadás várható időpontja: 2026. I. negyedév. Az ingatlanra 3 év teljes körű garancia és 10 év szavatosság vonatkozik.
További adatok
Telekterület: -
Kert mérete: -
Erkély mérete: -
Felszereltség: -
Parkolás: -
Kilátás: kertre néző
Egyéb extrák:  
-
Hirdető adatai
Hirdető neve: MPD Hungary Kft.
Kapcsolattartó: Venti Verdi Kft.
Hirdető telefonszáma: +36501234711
Honlap: -