Pest megye, Pécel
 

Ingatlan adatai
Irányár: 120 000 000 Ft
Típus: ház
Kategória: eladó
Alapterület: 115 m2
Fűtés: -
Állapota: új
Szobák száma: 4
Építés éve: 2025
Szintek száma: -
Részletes leírás
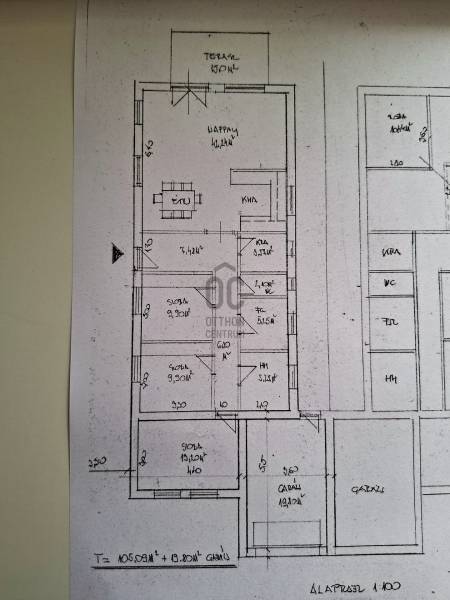
Pécel egyik legkedveltebb, exkluzív részén, az Apáca-dombon kínálunk eladásra egy modern stílusban épülő, új ikerházat, amely áprilisban birtokba vehető. Az ingatlan a környék legszebb panorámáját kínálja, mindemellett korszerű műszaki megoldásaival kényelmes és energiatakarékos otthont biztosít.Főbb jellemzők:• Lakás alapterülete: ~105,90 m²• Saját garázs: 19,80 m²• Tágas terasz: 15,00 m² – varázslatos kilátással• Telek mérete: 562 m² (saját használatú kertrésszel)• Helyiségek: amerikai konyhás nappali, 3 hálószoba, fürdőszoba, külön WC, előszoba, közlekedő, háztartási helység, kamraMűszaki tartalom:• Korszerű szigetelés és energiatakarékos szerkezetek• Hőszivattyús fűtés és padlófűtés a teljes házban• 3 rétegű, hőszigetelt műanyag nyílászárók• Redőnyök és 1 db klíma az árban• Modern burkolatok és minőségi beltéri ajtók• Saját, tágas garázs közvetlen házkapcsolattalMiért különleges?• Modern, letisztult építészeti stílus• Az Apáca-domb legszebb panorámája a nappaliból és a teraszról • Kertvárosias, nyugodt környezet• Gyorsan elérhető Budapest irányábaAz ingatlan 2026 áprilisában birtokba vehető, így az új tulajdonos már a tavaszi napokat saját új otthonában élvezheti.Ez az ikerház ideális választás azok számára, akik egy új építésű, prémium minőségű, modern és energiatakarékos otthonra vágynak a természet közelében, mégis a város közelében.
További adatok
Telekterület: 562 m2
Kert mérete: 562 m2
Erkély mérete: 15 m2
Felszereltség: -
Parkolás: -
Kilátás: -
Egyéb extrák:  
-
Hirdető adatai
Hirdető neve: Otthon Centrum
Kapcsolattartó: Doktor Tímea
Hirdető telefonszáma: +36 70 412 5796
Honlap: -