Budapest, V.kerület
 

Ingatlan adatai
Irányár: 139 900 000 Ft
Típus: lakás (tégla)
Kategória: eladó
Alapterület: 83 m2
Fűtés: -
Állapota: felújítást igényel
Szobák száma: 3
Építés éve: -
Szintek száma: -
Részletes leírás
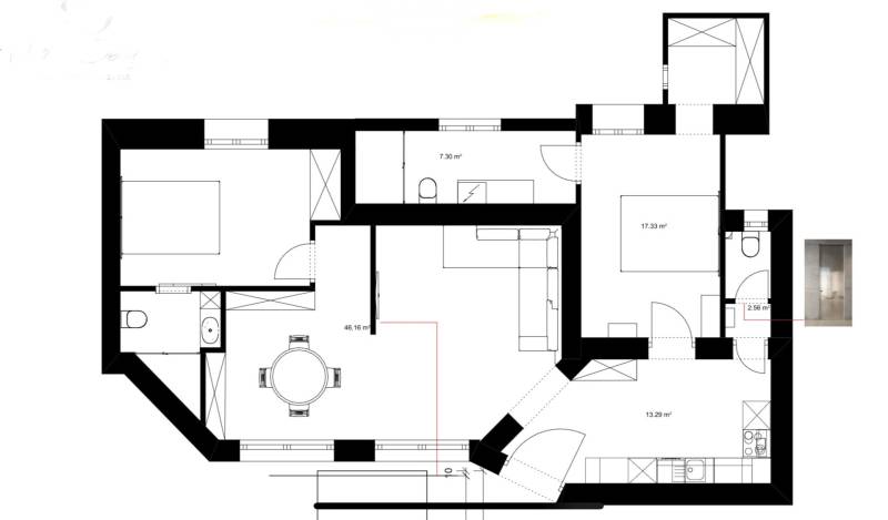
Eladásra kínálok a Váci utcában egy 1. Emeleti, felújítandó lakást kész látványtervekkel, és minden egyéb tervvel, melyet tervező álmodott meg, és mely kivitelezése is lehetséges külön megállapodásban. A lakás jelenleg tényleg vissza van bontva, és az alaprajz mutatja a jelenlegi válaszfalakat. Első körben így ebben az állapotban szeretnénk értékesíteni.Új szabványosított mérőhely. Viszont egyedi fa ablakok beépítésre kerülnek, azt az ár tartalmazza.
További adatok
Telekterület: -
Kert mérete: -
Erkély mérete: -
Felszereltség: -
Parkolás: -
Kilátás: udvari
Egyéb extrák:  
-
Hirdető adatai
Hirdető neve: Otthon Centrum
Kapcsolattartó: Halász Vivien
Hirdető telefonszáma: +36 70 461 9476
Honlap: -