Budapest, XXII.kerület
 

Ingatlan adatai
Irányár: 218 000 000 Ft
Típus: ház
Kategória: eladó
Alapterület: 180 m2
Fűtés: gáz (cirko)
Állapota: új
Szobák száma: 5
Építés éve: 2024
Szintek száma: -
Részletes leírás
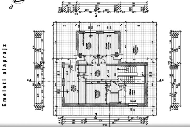
CSAK AZ IRODÁNK KÍNÁLATÁBAN !XXII. kerületben a Campona bevásárlóközpont közelében kínálunk eladásra egy 2024-ben épült 180 m2 hasznos alapterülettel rendelkező 5 szobás MODERN, ÚJ CSALÁDI HÁZAT.A KÉTSZINTES előkertes ingatlan két utcára nyíló 700 m2-es telken épült fel. A kertben egy autó számára található a külön álló könnyűszerkezetes, árammal ellátott 28 m2-es garázs. A telek mérete lehetőséget biztosít medence építésére is.HELYISÉGEI:A FÖLDSZINTEN nagyméretű, tágas nappali(55,87 m2) étkező- konyha(15,95 m2), kamra, dolgozószoba(16,8 m2) és egy fürdőszoba(7,2 m2) teszi kényelmessé a család életét. A földszinti terasz a bejáratnál közel 40 m2-es.AZ EMELETI SZINTET kényelmes lépcsőkön érjük el, ahol tágas előtér fogad, melyből külön nyílnak a napfényes hálószobák(10,90 m2, 10,90 m2, 14,60 m2) és egy gardrób szoba ami(10,2 m2).Ezen a szinten is van egy nagyméretű fürdőszoba( 9,30 m2).Az emelet érdekessége, hogy a szobákból méretes teraszra tudunk kimenni, ami körbe veszi az emeleti szintet, a mérete összesen 82 m2.A ház kertvárosias, zöldövezeti környezetben épült, 38-as téglából, vasbeton födémmel, cseréptetővel, 15 cm-es hőszigeteléssel. A műanyag nyílászárok elektromos redőnyökkel felszerelve lettek beépítve.A fűtést és meleg víz ellátást BOSCH kondenzációs kazán biztosítja, ahol kerámia burkolat van ott padlófűtés lett beépítve, ahol pedig laminált padló ott radiátorokkal oldották meg a hőleadást. Az épületbe riasztó kiépített.A lakóterekben összesen 4 db fűtő-hűtő klíma található. A bejárati kis kapuk és nagy kapuk mindkét utca fronton elektromosan nyithatók.A garázson kívül felszíni autóbeálló is kialakításra került a telken.HELYISÉGEK ELRENDEZÉSÉT LÁSD AZ ALAPRAJZOKON !Az INGATLAN PER ÉS TEHERMENTES, egy tulajdonosa van !IRÁNYÁRA: 218 millió Ft Az ingatlan elhelyezkedésének köszönhetően séta távolságra vannak a bevásárlási lehetőségek ALDI, LIDL, CAMPONA, TESCO, stb. Jó a tömegközlekedés, több buszjárattal elérhető a Móricz Zsigmond körtér, Kelenföld, a 4-es METRO, a belváros.Közelben található, óvoda, iskola, gyógyszertár, posta, stb.AJÁNLOM azoknak, akik egy kényelmes, korszerű, élhető kertvárosi CSALÁDI OTTHONRA vágynak.Amennyiben felkeltettem érdeklődését, kérdéseivel kapcsolatosan várom jelentkezését !Forduljon hozzám bizalommal !(G.I.)
További adatok
Telekterület: 689 m2
Kert mérete: 689 m2
Erkély mérete: -
Felszereltség: -
Parkolás: -
Kilátás: kertre néző
Egyéb extrák:  
-
Hirdető adatai
Hirdető neve: GDN Ingatlanhálózat
Kapcsolattartó: Nyegrutz Tibor
Hirdető telefonszáma: +36-30-250-4987
Honlap: -