Komárom-Esztergom megye, Úny
 

Ingatlan adatai
Irányár: 43 900 000 Ft
Típus: lakás (tégla)
Kategória: eladó
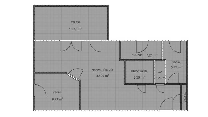
Alapterület: 55 m2
Fűtés: gáz (cirko)
Állapota: -
Szobák száma: 3
Építés éve: 1980
Szintek száma: -
Részletes leírás
✨ Eladó 55 m²-es lakás Únyban – terasszal és kertkapcsolattal! ✨✅ Helyszín: Úny, Budapesttől kb. 1 óra✅ Alapterület: nettó 55 m² • Elrendezés: nappali + 2 hálószoba✅ Fürdő: zuhanyzós • WC: külön✅ 10 m² terasz közvetlen kertkapcsolattal✅ Egyedi cirkófűtés, szigetelt – kedvező rezsiköltségHáz és környezet:✅ Gondozott tó közvetlenül a társasház mellett✅ Biztonságos játszótér, barátságos lakóközösség✅ Csendes, természetközeli (spirituális) környezet✨ Képzelje el, hogy reggeli kávéját a tóparton kortyolja, miközben a nap első sugarai megcsillannak a víz felszínén. Vagy éppen napfelkeltében jógázik a tóparton, ahol a csend és a természet harmóniája igazán spirituális élményt nyújt. Ez a hely nem csupán egy otthon – hanem életérzés. Olyan különleges környezet, amit látni kell, és amelybe első pillantásra beleszeret! ✨✅ Infrastruktúra: óvoda, iskola, bolt, orvos a faluban • buszmegálló a ház előtt⌂ Személyes megtekintés lehetséges, kérdéseire szívesen válaszolunk.⏳ Ez az ingatlan gyorsan gazdára találhat – érdemes időben lépni!⚖️ Vásárlását pénzügyi és jogi háttérrel biztosítjuk.☎ Hívjon bizalommal H–P 9:00–17:00, Sz 9:00–13:00 között
További adatok
Telekterület: -
Kert mérete: -
Erkély mérete: -
Felszereltség: -
Parkolás: -
Kilátás: kertre néző
Egyéb extrák:  
-
Hirdető adatai
Hirdető neve: Otthon Centrum
Kapcsolattartó: Borza Gábor
Hirdető telefonszáma: +36 70 716 8126
Honlap: -