Győr-Moson-Sopron megye, Sopron
 

Ingatlan adatai
Irányár: 198 000 000 Ft
Típus: ház
Kategória: eladó
Alapterület: 385 m2
Fűtés: gáz (cirko)
Állapota: -
Szobák száma: 8
Építés éve: 1971
Szintek száma: -
Részletes leírás
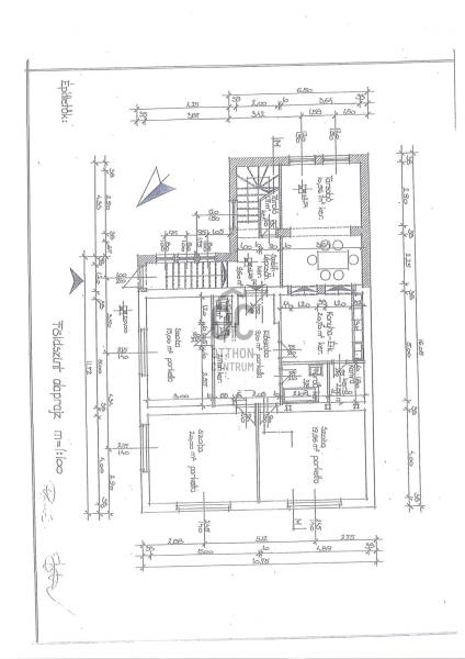
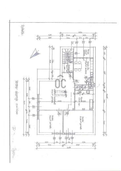
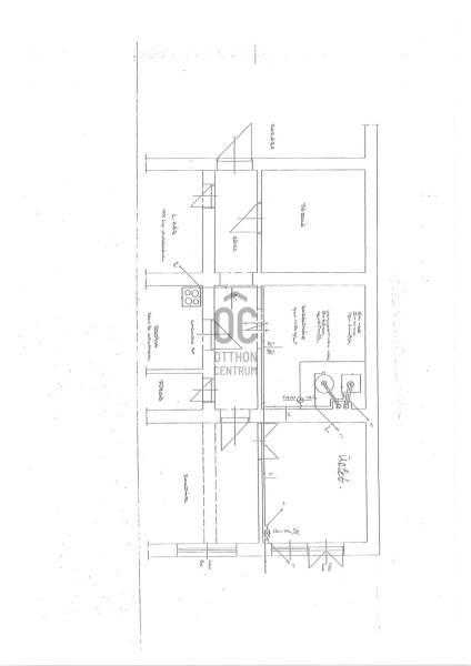
Egy különleges lehetőséget kínálunk nagycsaládosok vagy összeköltözők számára, akik álmaik otthonát keresik a gyönyörű Sopronban, a csendes és zöld Egeredi dombon. Az ingatlan alapterülete 385 négyzetméter, míg a telek mérete 459 négyzetméter és egy sarok telken helyezkedik el így két utca felől is megközelíthető.A ház három szintes, három különálló lakással, melyek zárt lépcsőházból, külön bejárattal klözelíthetőek meg.A földszinten , amely 130 m2 található- konyha-étkezővel- kamra- kazánház- mosókonyha- mosdó- üzlethelyiség, mely külön bejárattal az utcafrontról közelíthető meg. Az I. emeleten, amely 130 m2 található- 4 tágas szoba- konyha étkezővel- fürdőszoba+ wc- különálló wc- spájz- mosókonyha A II. emelet ami 125 m2 található- tágas nappali- 2 szoba- konyha étkezővel- spájz- fürdőszoba- külön wc - mosókonyha- erkély- Téglaépítésű ház, vastag 40 cm falakkal és 12 cm szigeteléssel.- Műanyag ablakok 3 rétegű üveggel, alu redőnnyel, szúnyoghálóval 5 éve lettek cserélve.- A ház fűtését kondenzációs gázkazán és vegyestüzelésű kazán biztosítja.- A ház jól megközelíthető központi helyen van, mégis csendes nyugodt környezet.A házban több generáció is zavartalanul tud élni, az önálló bejáratoknak köszönhetően.Alkalmas lehet akár összeköltöző családoknak, apartmannak vagy panziónak is.Az udvaron található 3 garázs is, melyek közül az egyik autószerelő műhely beépített emelővel.Az utcán a parkolás aház előtt ingyenes, akár több autó is elfér.Ha felkeltettem érdeklődését keressen bizalommal, további információért.Hitelre van szüksége?Az Otthon Centrum az ország egyik legnagyobb és legmegbízhatóbb hitelközvetítőjeként, teljes körű és díjmentes hitelügyintézéssel, biztosításkötéssel áll rendelkezésére!Kérje személyre szabott ajánlatunkat Kollégáinktól!Lakásbiztosításban is otthon vagyunk!Ingatlan és biztosítás egy helyen! Szakértő kollégáink segítenek megtalálni a legmegfelelőbb ajánlatot.
További adatok
Telekterület: 459 m2
Kert mérete: 459 m2
Erkély mérete: -
Felszereltség: -
Parkolás: -
Kilátás: -
Egyéb extrák:  
-
Hirdető adatai
Hirdető neve: Otthon Centrum
Kapcsolattartó: Füzi-Májer Zsuzsanna
Hirdető telefonszáma: +36 70 388 6056
Honlap: -