Jász-Nagykun-Szolnok megye, Tiszaszentimre
 

Ingatlan adatai
Irányár: 7 490 000 Ft
Típus: ház
Kategória: eladó
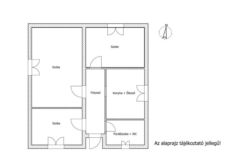
Alapterület: 82 m2
Fűtés: egyéb
Állapota: felújítást igényel
Szobák száma: 3
Építés éve: 1975
Szintek száma: -
Részletes leírás
Tiszaszentimre csendes, nyugodt utcájában kínálunk megvételre egy 815 nm területen fekvő családi házat. Az ingatlan vegyes falazatú, hullámpalával fedett. Alapterülete 82 nm, helyiségei a közlekedőből nyílnak: 3 szoba, egy konyha étkezővel, és egy fürdőszoba benne lévő WC-vel. Víz, villany és csatorna be van vezetve, a gáz az utcán található. A ház felújítandó, így kiváló lehetőséget nyújt mindazok számára, akik saját elképzeléseik szerint szeretnének otthont kialakítani. A telek akár bővítésre, akár kert kialakítására is kiválóan alkalmas.A település rendelkezik mindazon középületekkel, melyek az oktatáshoz, a művelődéshez, az egészségügyhöz és szociális ellátáshoz nélkülözhetetlenek. Minden utca szilárd burkolattal van ellátva. A kikapcsolódásra vágyóknak, a vízi sport szerelmeseinek, a horgászat kedvelőinek a Tisza-tó közelsége nyújt lehetőséget. A kirándulni vágyók egy órán belül gyönyörködhetnek a Hortobágy-puszta végtelenségében, vagy túrázhatnak az Északi-középhegység erdeiben. A gyógyulni vágyók felkereshetik Tiszafüred, Tiszaörs, Berekfürdő gyógyító hatású meleg vizes strandjait.Ajánlom az ingatlant mindazoknak, akik szeretik a csendet, a nyugodt falusi életet. Családoknak, nyaralóknak egyaránt jó választás. Amennyiben felkeltettem érdeklődédét, vagy kérdése lenne az ingatlannal kapcsolatban, forduljon hozzám bizalommal.
További adatok
Telekterület: 815 m2
Kert mérete: 815 m2
Erkély mérete: -
Felszereltség: -
Parkolás: -
Kilátás: -
Egyéb extrák:  
-
Hirdető adatai
Hirdető neve: Otthon Centrum
Kapcsolattartó: Langné Kiss Piroska
Hirdető telefonszáma: +36 70 716 9891
Honlap: -