Pest megye, Dány
 

Ingatlan adatai
Irányár: 79 900 000 Ft
Típus: ház
Kategória: eladó
Alapterület: 90 m2
Fűtés: gáz (cirko)
Állapota: -
Szobák száma: 3
Építés éve: 1960
Szintek száma: -
Részletes leírás
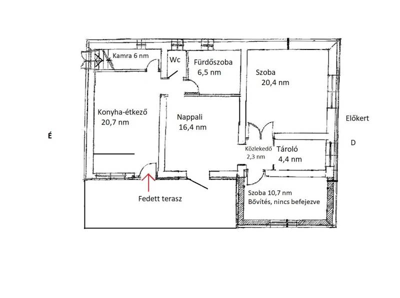
Dányban kínálunk megvásárlásra egy gyönyörűen felújított, földszintes önálló családi házat 1230 nm-es telekkel, kerti tóval, sütögetővel, hatalmas fedett terasszal, két autó számára fedett beállóval. A ház az utóbbi években műszakilag és esztétikailag fel lett újítva, komplett tető csere 2024-ben, fűtés korszerűsítés (kondenzációs kazán), elektromos hálózat, vízcsövek,. lefolyó csövek is cserélve lettek. Továbbá a nyílászárók, konyha, fürdőszoba, szaniterek és burkolatok is megújultak. Modern, esztétikus belső design jellemzi a házat. A nagy, fedett teraszról nyílik a bejárat, itt található egy előszoba pakolási lehetőséggel, majd a modern bútorral és gépekkel felszerelt konyha-étkező, kamra (alatta pince), egy szép zuhanyzós és kádas fürdőszoba, nagy hálószoba, teraszkapcsolatos nappali és még egy hálószoba, mely befejezésre vár (festés és burkolás van hátra, igény esetén a tulajdonos befejezi külön megállapodás alapján). A ház első része vegyes falazat, szigetelt alappal, a további részek tégla építésűek. A tégla részeken 20 cm dryvit szigetelés van, A tetőt Tondach cserép fedi. A teljes bútorzat a vételár részét képezi, tehermentes ingatlan, rövid időn belül birtokba vehető.
További adatok
Telekterület: 1 230 m2
Kert mérete: 1 230 m2
Erkély mérete: 45 m2
Felszereltség: -
Parkolás: -
Kilátás: -
Egyéb extrák:  
-
Hirdető adatai
Hirdető neve: Otthon Centrum
Kapcsolattartó: Sipos Zoltánné
Hirdető telefonszáma: +36 70 469 3031
Honlap: -