Budapest, VI.kerület
 

Ingatlan adatai
Irányár: 3 528 450 Ft/hó
Típus: kereskedelmi/ipari ingatlan
Kategória: kiadó
Alapterület: 199 m2
Fűtés: -
Állapota: -
Szobák száma: -
Építés éve: 2008
Szintek száma: -
Részletes leírás
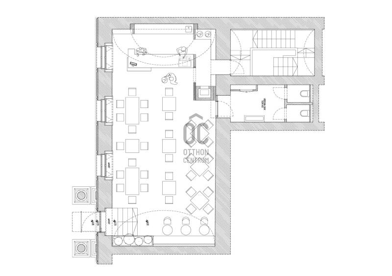
Kiadó egy exkluzív, belső két szintes, 199 m²-es kiadó üzlethelyiség, amely Budapest szívében, az Andrássy úton található, az Avenue Gardens luxuslakókomplexumban.Lokáció:A belváros egyik legpatinásabb sétálóutcáján, az Andrássy úton található Avenue Gardens luxuslakópark eleganciáját kínálja. Az UNESCO Világörökség részén álló épület építészeti megújulásával egy időtlen formát ötvöz modern funkcionalitással és prémium szolgáltatásokkal.Műemlékvédelmi környezetben felújított, 19. századi stílusú homlokzat alatt modern kialakítású, több épületből álló komplexum, melynek belső kertjében japán stílusú kert, vízesés és szökőkút is helyet kapott.199 m², belső két szintes elrendezés: földszint + külön pincészint, ami ideális például konyha számára.Állapot: jelenleg kisebb felújítás alatt áll, amely hamarosan befejeződik – így azonnal költözhető.Hosszú távú szerződésre nyitott bérlőt keresünk.Hasznosítási lehetőségek: Elsősorban vendéglátó célú besorolású, ugyanakkor ideális továbbá iroda vagy szolgáltató egység céljára is.Igény szerint parkolóhely bérelhető a mélygarázsban.
További adatok
Telekterület: -
Kert mérete: -
Erkély mérete: -
Felszereltség: -
Parkolás: -
Kilátás: -
Egyéb extrák:  
-
Hirdető adatai
Hirdető neve: Otthon Centrum
Kapcsolattartó: Ignatisin Ella
Hirdető telefonszáma: +36 70 461 9426
Honlap: -