Budapest, XIX.kerület
Kispest 

Ingatlan adatai
Irányár: 129 900 000 Ft
Típus: ház
Kategória: eladó
Alapterület: 200 m2
Fűtés: -
Állapota: -
Szobák száma: 5
Építés éve: 2007
Szintek száma: -
Részletes leírás
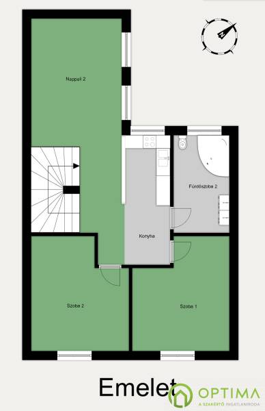
5 SZOBÁS ÖNÁLLÓ CSALÁDI HÁZ KISPEST CSENDES MELLÉKUTCÁJÁBANMegvásárlásra kínálok Budapest XIX. kerületének egyik nyugodt, forgalomtól mentes mellékutcájában egy 200 m² alapterületű, kétszintes, önálló családi házat.A 2007-ben épült ingatlan praktikus elrendezésének köszönhetően ideális nagyobb család számára is.Az alsó szinten világos, tágas nappali, egy kényelmes méretű hálószoba, fürdőszoba, valamint a lépcső alatti tároló kapott helyet, amely kiváló pakolási lehetőséget biztosít.Az emeleten egy amerikai konyhás nappali, két hálószoba és egy fürdőszoba található.Jelenleg az ingatlan egy gipszkarton fallal két külön bejáratú lakássá lett alakítva – ez a megoldás könnyedén visszaalakítható az eredeti állapotába. Az alsó szint nagyobb szobájából közvetlen kijárat nyílik a hátsó udvar hangulatos teraszára.A 360 m2 alapterületű kert ideális helyszín pihenésre, kikapcsolódásra, családi és baráti összejövetelekre. A környék előnye, hogy bár minden fontos szolgáltatás, üzlet és közlekedési lehetőség könnyedén elérhető, az utca mégis csendes, nyugodt és barátságos környezetet biztosít.Szeretettel várom hívását az ingatlan megtekintése kapcsán a hét bármely napján!
További adatok
Telekterület: 360 m2
Kert mérete: 360 m2
Erkély mérete: 20 m2
Felszereltség: -
Parkolás: -
Kilátás: -
Egyéb extrák:  
-
Hirdető adatai
Hirdető neve: OPTIMA - A szakértő ingatlaniroda
Kapcsolattartó: Csúcs Adrienn
Hirdető telefonszáma: +36302133636
Honlap: -