Tolna megye, Gerjen
 

Ingatlan adatai
Irányár: 22 000 000 Ft
Típus: ház
Kategória: eladó
Alapterület: 93 m2
Fűtés: egyéb
Állapota: -
Szobák száma: 3
Építés éve: 1940
Szintek száma: -
Részletes leírás
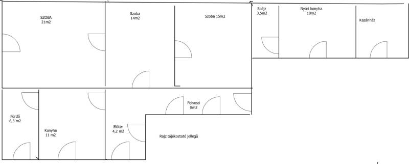
ELADÓ GERJEN PARASZTHÁZ!!3 szobás 93 m2-es kedves kis parasztház vegyes falazatú eladó, melyben van konyha, fürdő-WC folyosó . -2 szoba lapozott egy szobában padló van.-Többi helyiség lapozott.-Víz ,villany, csatorna be van kötve.-A fűtést vegyestüzelésű kazán adja a meleget radiátoros rendszerrel.-Ház jó állapotba van, igény esetén költözhető.-Részben felújítandó , villanyvezeték újítása ajánlott a mai gépek biztonsága végett.-A ház hátulját végig alá szigetelték és falazták nagyméretű téglával kb. 70cm magasan.-A ház folytatásában még van egy nyári konyha, spájz, kazánház és melléképületek .-Sok melléképület lehetőséget ad állattartásra ha szeretne az új tulajdonos.-Aki szereti a dunát vagy a horgászatot annak itt a helye. :) kb. 200 m-re van a duna.Ha fel keltettem az érdklődését nyugodtan keressen szívesen segítek.Csok és az otthon start hitel is igénybe vehető.Ha szüksége van banki kölcsönre kolléganőnk segít térítés mentesen.
További adatok
Telekterület: 1 079 m2
Kert mérete: 1 079 m2
Erkély mérete: -
Felszereltség: -
Parkolás: -
Kilátás: -
Egyéb extrák:  
-
Hirdető adatai
Hirdető neve: Otthon Centrum
Kapcsolattartó: Molnár Ida
Hirdető telefonszáma: +36 70 469 3596
Honlap: -