Somogy megye, Fonyód
 

Ingatlan adatai
Irányár: 495 000 000 Ft
Típus: nyaraló
Kategória: eladó
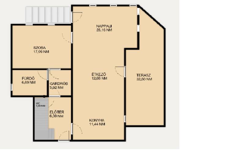
Alapterület: 149 m2
Fűtés: gáz (cirko)
Állapota: -
Szobák száma: 5
Építés éve: 1930
Szintek száma: -
Részletes leírás
Eladó Fonyód egyik legpatinásabb részén, a történelmi Szaplonczai sétány védett ölelésében a különleges hangulatú Chernel villa. Az ingatlan páratlan kilátással rendelkezik a Balatonra és az északi part ikonikus látképére.A villa teraszáról és a házból örök panoráma nyílik a Balaton-felvidék tanúhegyeire, így Badacsony, Gulács és Ábrahám-hegy sziluettje minden nap elvarázsolja a szemlélőt. A közelben található a családbarát Bélatelepi strand, így a nyári balatoni élmények is karnyújtásnyira vannak.Az épület nemcsak fekvésében, hanem megjelenésében is igazi ritkaság: az épület hagyományait megőrizve ötvözték a modern építészeti stílust. A villa presztízst és egyediséget képvisel, tökéletes választás azok számára, akik időtálló értékbe fektetnének.Ez az ingatlan nemcsak otthon, hanem életérzés – a klasszikus balatoni nyarak öröksége és a nyugalom szigete a déli part legszebb részén.Ez a két szintes, különleges hangulatú ház tökéletes választás mindazoknak, akik értékelik a minőséget, az egyedi megoldásokat és a kényelmet. Az ingatlan nappali + 4 szobás kialakítású, három modern fürdőszobával, tágas terasszal és praktikus pincével rendelkezik. A ház minden szeglete átgondolt és korszerű megoldásokat kínál.A nyílászárók egyedi gyártásúak, az ablakokon szellőztető funkció és szúnyogháló is található, a hő- és hangszigetelésről pedig dupla szendvics üvegezés gondoskodik. Az ingatlan teljes mértékben téliesített, így egész évben komfortosan használható.A belső terek kialakításánál a természetes anyagok és a prémium burkolatok dominálnak: a hajópadló lépésálló szigeteléssel készült, megfelelve a mai építési szabványoknak, a nappaliban és az étkezőben pedig stílusos spanyol cementlapok teszik különlegessé az enteriőrt.A tökéletes klímakomfortot az emeleten három különálló klímaberendezés biztosítja, míg a földszinten a nappali és a hálószoba is külön hűtő-fűtő klímával felszerelt.Ez a különleges adottságokkal rendelkező ingatlan számos kulcsfontosságú eleme már elkészült, a végső befejezés azonban a leendő tulajdonosra vár, így maximálisan személyre szabható.A házban Leier típusú kémény került kiépítésre, és a kandalló kiállása is elő van készítve – így a meghitt téli esték hangulata már csak egy döntésre van. Medence és annak teljes gépészetének kialakítása adott.A pincében már csak a burkolatok hiányoznak, a falak és az alapinfrastruktúra készen áll, így minimális munkával egy teljes értékű, hasznos tér alakítható ki. A kert kialakítása még nyitott amely remek alapot biztosít díszkert,pihenőkert vagy akár konyhakert létrehozásához.Az ingatlanhoz tartozik egy különálló 50 négyzetméteres, közműves melléképület is, amelyhez a felújítási tervek rendelkezésre állnak – akár vendégházként hasznosítható és egy külön utcáról is megközelíthető.Ez az ingatlan ideális választás akár nyaralónak, akár állandó otthonnak – a modern technikai megoldásoknak és a gondos kivitelezésnek köszönhetően hosszú távon is értékálló befektetés.Ne hagyja ki ezt a különleges lehetőséget, hogy egy balatoni ékkő birtokosa legyen!
További adatok
Telekterület: 1 650 m2
Kert mérete: 1 650 m2
Erkély mérete: 33 m2
Felszereltség: -
Parkolás: -
Kilátás: -
Egyéb extrák:  
-
Hirdető adatai
Hirdető neve: Otthon Centrum
Kapcsolattartó: Czéh Ágnes
Hirdető telefonszáma: +36 70 716 9741
Honlap: -