Tolna megye, Tolna
 

Ingatlan adatai
Irányár: 49 900 000 Ft
Típus: ház
Kategória: eladó
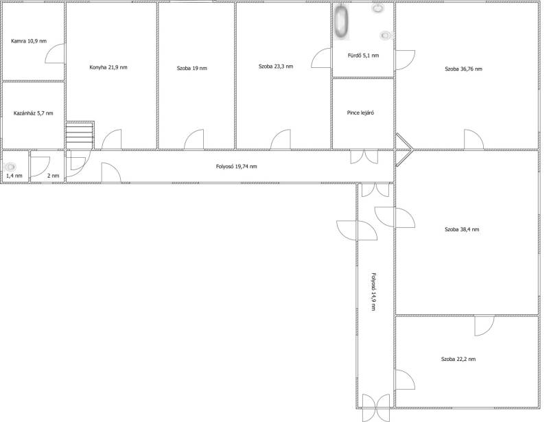
Alapterület: 250 m2
Fűtés: gáz (cirko)
Állapota: felújítást igényel
Szobák száma: 5
Építés éve: 1940
Szintek száma: -
Részletes leírás
Tolna-Mözs központjában téglaépítésű családiház eladó.Ha szereti a tágas tereket 3 m feletti belmagassággal, akkor ez az ingatlan Önre vár. Tolna-Mözs központjában kínálok eladásra egy 5 szobás családi házat, melynek hasznosítását illetően csak a képzelete szab határt. Orvosi rendelők? Irodaház? Egyéb szolgáltatás? Esetleg lakásokat alakítana ki belőle? Raktározás? Telephely? Tekintse, tervezze és valósítsa meg elképzelését!Főbb jellemzői:- központi elhelyezkedés, könnyű megközelíthetőség- téglából épült 70 cm-es falakkal- nyílászárói fából készültek- fűtése kondenzációs gázkazánnal történik- a tetőt 2009-ben rakták újra, a felújítás a szerkezetet is érintette- udvarában melléképület szintén téglából- saroktelek, így két utcáról megközelíthető- közel 1800 nm telekterület- autópályához közel helyezkedik el, - a környező városok gyorsan elérhetők: Paks 30 km, Szekszárd 10 km, Kalocsa 30 kmHa felkeltettem az érdeklődését, időpontot a megadott számon tud foglalni a megtekintéshez.Teljes körű pénzügyi megoldások ügyintézése díjmentesen:* Bankfüggetlen hitelcenterünk díjmentesen versenyezteti minden bank és hitelintézet ajánlatát.* Önnek nincs más dolga, mint beszélgetni munkatársunkkal, majd a megversenyeztetett ajánlatokból kiválasztani a hosszútávon is a legmegfelelőbb konstrukciót.* Szakértőnk több mint 20 éves szakmai tapasztalattal és egyedi igényekre szabott, fogyasztóbarát lakáshitelekkel, babaváró hitellel, teljes körű CSOK ügyintézéssel várja Önt.* Előre egyeztetett időpontban.Tolnán téglaépítésű családi ház nagy telekkel eladó.
További adatok
Telekterület: 1 788 m2
Kert mérete: 1 788 m2
Erkély mérete: -
Felszereltség: -
Parkolás: -
Kilátás: -
Egyéb extrák:  
-
Hirdető adatai
Hirdető neve: Otthon Centrum
Kapcsolattartó: Baranyi Mónika
Hirdető telefonszáma: +36 70 388 5776
Honlap: -