Veszprém megye, Tapolca
 

Ingatlan adatai
Irányár: 29 900 000 Ft
Típus: ház
Kategória: eladó
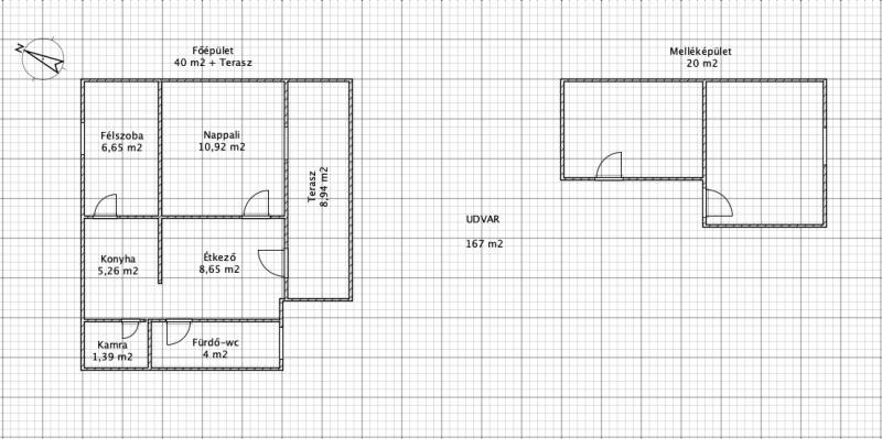
Alapterület: 40 m2
Fűtés: gáz (cirko)
Állapota: -
Szobák száma: 2
Építés éve: 1950
Szintek száma: -
Részletes leírás
KIEMELT MEGBÍZÁS AZ OTTHON CENTRUM KÍNÁLATÁBANMegvételre kínálom Veszprém megyében, Tapolcán ezt a 40 m2 lakóterületű családi házat, belvároshoz közeli utcában.Az ingatlan 167 m2 -es telken található, ahol egy különálló 20 m2-es melléképület is helyet kapott. Ideális lehet lakórész kialakításra, erre készült is építési terv korábban.A vegyes falazatú (kő és tégla) épület 1950-es években épült, a tetőszerkezet fa szerkezetű nyeregtető cserép fedéssel.Minden nyílászáró fa. A ház összközműves.A fűtésről és a meleg vízről gázkazán gondoskodik, radiátoros hőleadással.A teljes elektromos hálózat fel lett újítva korábban.Tapolca a Balaton-felvidék nyugati szélén, a Tapolcai-medence közepén helyezkedik el. Tapolca egyértelműen leghangulatosabb, országos összevetésben is páratlan látványossága a tóparti főtér: a Malom-tó és a mellette épült középkori eredetű házsor hangulata nehezen engedi el a látogatót. Tapolca szláv jelentése meleg víz - a forrásvíz 18 fokon tör elő a város alatti karsztos barlangrendszerből. Hőmérsékleténél fogva a tó vize nem fagy be télen. A várost körülölelik a Tapolcai-medence bazalthegyei.Az ingatlan a déli városrészben található, jó elhelyezkedésének köszönhetően, a Malom-tó, iskola, óvoda, bolt, posta, orvosi rendelő egy pár perces sétával elérhető.A város saját stranddal rendelkezik, mely csak pár percnyi autóútra van a háztól.Az ingatlan a Balaton második vonalában, a Magyar Tengertől mindössze 14 km távolságra helyezkedik el.Amennyiben felkeltettem érdeklődését vagy kérdése van, forduljon hozzám bizalommal!
További adatok
Telekterület: 167 m2
Kert mérete: 167 m2
Erkély mérete: 9 m2
Felszereltség: -
Parkolás: -
Kilátás: -
Egyéb extrák:  
-
Hirdető adatai
Hirdető neve: Otthon Centrum
Kapcsolattartó: Bolla Róbert
Hirdető telefonszáma: +36 70 469 3336
Honlap: -