Zala megye, Petrivente
 

Ingatlan adatai
Irányár: 5 000 000 Ft
Típus: ház
Kategória: eladó
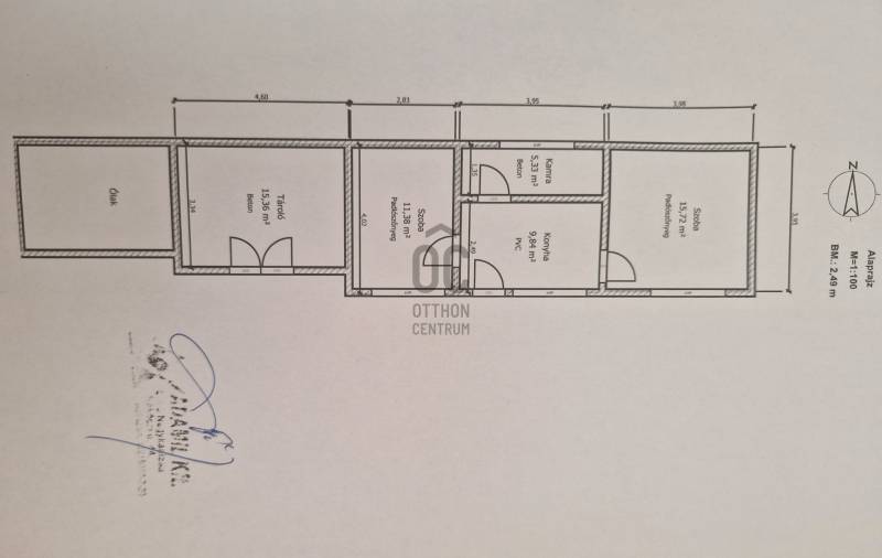
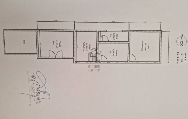
Alapterület: 50 m2
Fűtés: -
Állapota: felújítást igényel
Szobák száma: 2
Építés éve: 1975
Szintek száma: -
Részletes leírás
Petrivente község a Zalai-dombság délnyugati részén helyezkedik el, légvonalban alig 7 kilométerre a horvát határtól. Kb. 300fő lakossággal rendelkező kis falu.A közvetlenül határos települések: északkelet felől Rigyác, kelet felől Szepetnek, dél felől Semjénháza, délnyugat felől Tótszentmárton, északnyugat felől pedig Becsehely. A legközelebbi városok: keleti irányból Nagykanizsa, nyugati irányból pedig Letenye.A legfontosabb közúti megközelítési útvonala a 7-es főút, ezen érhető el mindkét említett város felől. Közelben az M7-es autópálya.Ezen a békés, rendezett kis településen kínálom megvételre az alábbi felújítandó lakóházat:- 1910m2 nagyságú bekerített, széles sík fekvésű telek- 50m2 nagyságú lakóház, melynek folytatásában tároló és ólak megtalálhatóak.- A ház helyiségei: 2 szoba, kamra, konyha- Villany a házba bekötve, víz és csatorna a telken belül, gáz az utcán megtalálható.- Az udvaron gyümölcsfák és kerti csap található.- Az épület kb. 1975-ben épült tégla falazattal, fagerendás födémszerkezettel, nyeregtető cserép héjazattal.- Kétrétegű üvegezésű fa nyílászárók, a homlokzaton alapvakolat.- A ház felújítandó állapotú!- Az ingatlan komfort nélküli, nincs benne sem fürdő, sem WC, sem melegvíz-ellátás kialakítva.Az ingatlan 1/1 tulajdonban van, tehermentes. Teljes kifizetést követően azonnal birtokba vehető.Irodánk teljes körű, ingyenes szolgáltatást nyújt kereső ügyfeleinknek.Szakszerű tanácsadással, hitelügyintézéssel, energetikai tanúsítvány elkészítésével és kedvező díjszabású ügyvéddel nyújtunk segítséget.
További adatok
Telekterület: 1 910 m2
Kert mérete: 1 910 m2
Erkély mérete: -
Felszereltség: -
Parkolás: -
Kilátás: -
Egyéb extrák:  
-
Hirdető adatai
Hirdető neve: Otthon Centrum
Kapcsolattartó: Rimai Loretta
Hirdető telefonszáma: +36 70 461 9081
Honlap: -