Zala megye, Szentgyörgyvölgy
 

Ingatlan adatai
Irányár: 23 000 000 Ft
Típus: ház
Kategória: eladó
Alapterület: 81 m2
Fűtés: egyéb
Állapota: -
Szobák száma: 2
Építés éve: 1975
Szintek száma: -
Részletes leírás
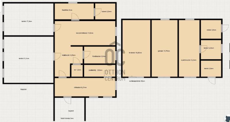
A csodálatos Őrségi Nemzeti Park területén, Szentgyörgyvölgy szívében, Zala vármegye Ny-i részén, ahol a természet közelsége és a nyugalom várja, itt kínálom eladásra, ezt a tégla építésű családi házat. Az ingatlan belső lakrész 80,9nm kényelmes otthon, mely ideális választás lehet ,családok számára, akár befektetési céllal keres ingatlant. A házban két tágas szoba, konyha étkezővel, főzőfülke, kamra, előszoba, fürdőszoba és külön mellékhelyiség kapott helyet, melyet igény esetén könnyen modernizálhat. Az előszobából nyílik a padlásfeljáró. 2015-ben a tetőn lévő pala tisztítását elvégezték, majd 2023-ban a pala felülete bitumenes zsindely borítást kapott. Az ingatlanhoz tartozó 1366 nm telek bőséges lehetőséget kínál a szabadidős tevékenységekre, kertészkedésre, állattartásra, akár bővítésre. A körbekerített, sík területen nagy fatároló, garázs,nyári konyha és tároló helyiségek kerültek kialakításra. A ház fűtése hagyományos fatüzelésű, melyet kettő cserépkályha biztosít. Az épület átlagos állapotban van, a vezetékek (víz, villany) cserét igényelnek. A gáz és a szennyvíz az utcán található. Szentgyörgyvölgy egy csendes, biztonságos település, mely ideális helyszín a természetet kedvelőknek. A környék tele van túra útvonallal, amiket érdemes felfedezni kerékpárral, gyalogosan , akár lóháton is. A közlekedési lehetőségek kedvezőek; autóval és tömegközlekedéssel egyaránt könnyen megközelíthető, Lenti 15 km, Zalaegerszeg 40 km távolságra. Az ingatlan nem csupán egy ház, hanem egy lehetőség arra, hogy a természet közelségében, egy barátságos közösségben éljen. Ez a környék nagyon közkedvelt lett az elmúlt évek során. Az erdőség, a dimbes-dombos táj nyugalmat áraszt. Ha csendre,kikapcsolódásra, lelassulásra vágyik tökéletes megoldást jelenthet. Ha szeretné megtapasztalni ezt a különleges életérzést, ne habozzon feltenni kérdéseit, szívesen állok rendelkezésére minden információval, mely segítheti a döntésében. Az ingatlan piaca folyamatosan változik, így érdemes mihamarabb lépni, hogy ne maradjon le erről a remek lehetőségről! Azonnal birtokba vehető, per és tehermentes! Jogviszonyok rendezettek!
További adatok
Telekterület: 1 366 m2
Kert mérete: 1 366 m2
Erkély mérete: 3 m2
Felszereltség: -
Parkolás: -
Kilátás: -
Egyéb extrák:  
-
Hirdető adatai
Hirdető neve: Otthon Centrum
Kapcsolattartó: Pölhösné Csilla
Hirdető telefonszáma: +36 70 716 8481
Honlap: -