Hajdú-Bihar megye, Debrecen
 

Ingatlan adatai
Irányár: 224 900 000 Ft
Típus: ház
Kategória: eladó
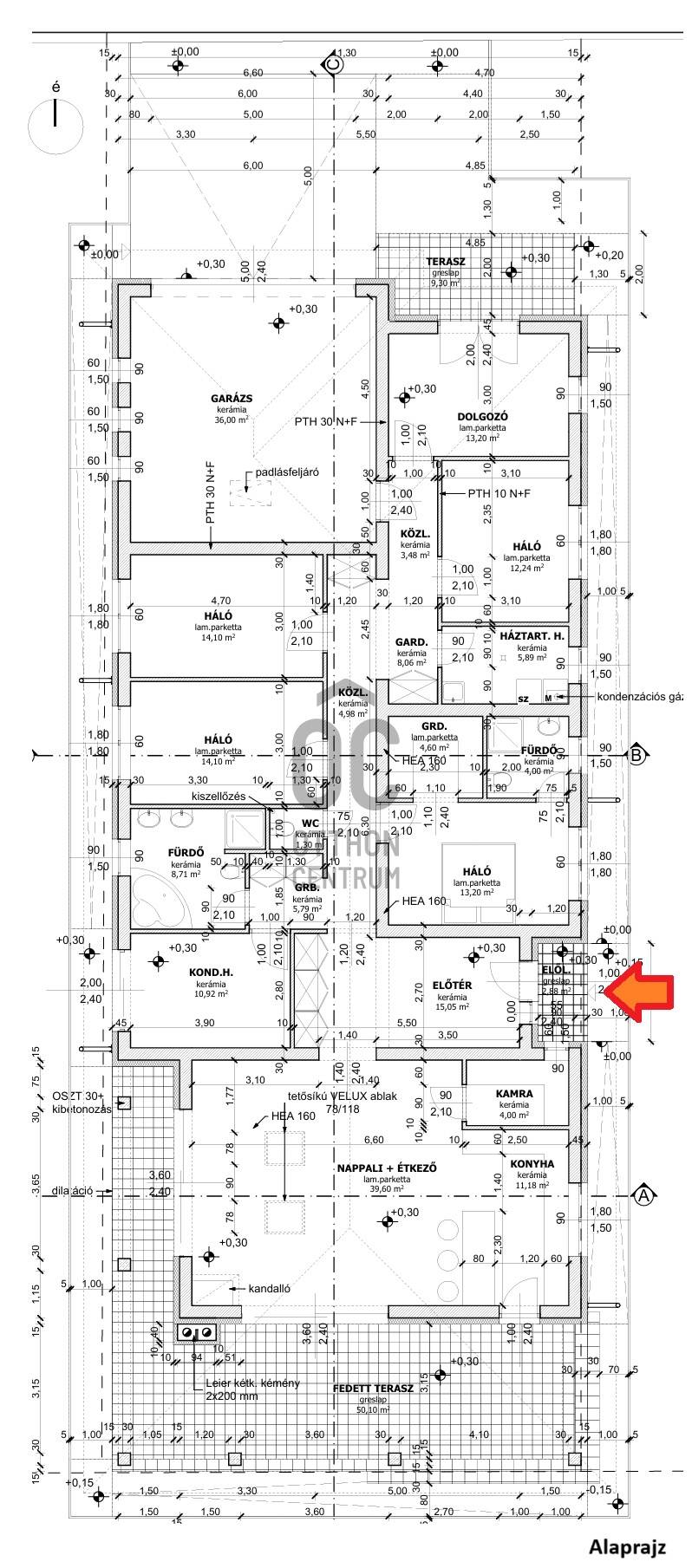
Alapterület: 233 m2
Fűtés: gáz (cirko)
Állapota: -
Szobák száma: 6
Építés éve: 2017
Szintek száma: -
Részletes leírás
Csendes, kertvárosi környezetben, 1346 m²-es, teljes közműves telken eladó egy 2017-ben épült, egyedi tervezésű, kiváló állapotú családi ház, kiemelkedően alacsony fenntartási költségekkel és magas műszaki tartalommal.Főbb jellemzők:- 233 m² hasznos alapterület- téglaépítés, hőszigetelt homlokzat- nappali + amerikai konyha + étkező- 4 külön nyíló hálószoba- dolgozószoba- kondiszoba infraszaunával- 2 fürdőszoba, az egyik káddal és tusolóval, a másik zuhanyzóval- vendégmosdó- külön gardróbszoba- közlekedőkben beépített gardróbszekrények- nagyméretű, fedett terasz- dupla garázs elektromos kapuval, közvetlen lakáskapcsolattal.Modern technológia, okos megoldások:- 7,5 kW napelemrendszer + napkollektor → minimális rezsi- gáz-cirkó kondenzációs kazán:- padlófűtés a nappali–étkező–konyha térben- lapradiátoros fűtés a többi helyiségben- központi (hűtő/fűtő) mennyezeti klíma minden helyiségben - elektromos redőnyök a legtöbb nyílászárón- nappaliban elektromos napháló is beszerelésre került- riasztórendszer- elektromos garázskapu és elektromos utcai nagykapuGondozott kert, automatizált kényelem:- automata öntözőrendszer- robotfűnyíró- kertisütő- tároló- intim, jól szeparált zöldfelület – akár medencének is bőven van hely.Az ingatlanról teljes körű videó felvétel készült, a megtekintése érdekében weboldalunkon keresse a H505492 regisztrációs számon vagy keressen telefonon közvetlenül.Ez az ingatlan tökéletes választás többgyermekes családnak, otthonról dolgozóknak, vagy azoknak, akik kompromisszummentes kényelmet keresnek egy modern, időtálló otthonban!Helyszín: Debrecen – KerekestelepTelekméret: 1346 m²Ár: 224,9 MFtTovábbi információért vagy megtekintésért keress bizalommal üzenetben vagy telefonon!
További adatok
Telekterület: 1 346 m2
Kert mérete: 1 346 m2
Erkély mérete: 60 m2
Felszereltség: -
Parkolás: -
Kilátás: -
Egyéb extrák:  
-
Hirdető adatai
Hirdető neve: Otthon Centrum
Kapcsolattartó: Némethné Zsuzsa
Hirdető telefonszáma: +36 70 412 3861
Honlap: -