Zala megye, Hévíz
 

Ingatlan adatai
Irányár: 98 493 750 Ft
Típus: ház
Kategória: eladó
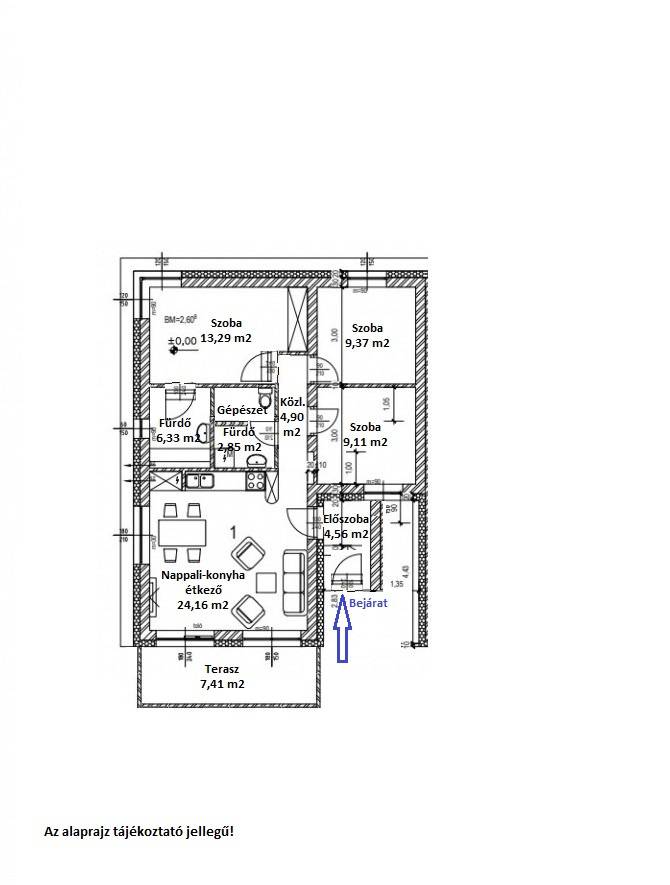
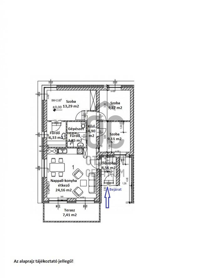
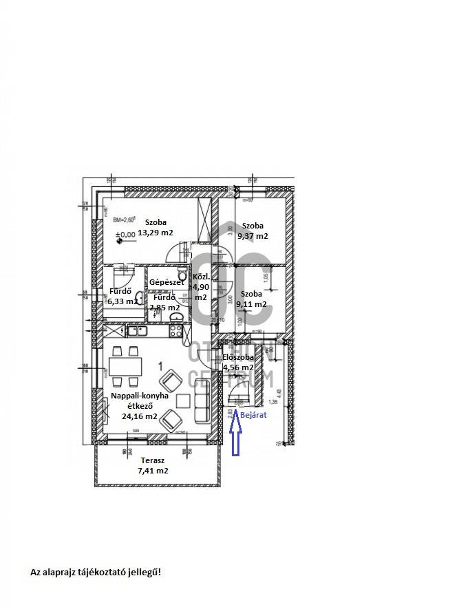
Alapterület: 75 m2
Fűtés: -
Állapota: új
Szobák száma: 4
Építés éve: 2023
Szintek száma: -
Részletes leírás
A sorház első háznak lehet boldog tulajdonosa!Ízlésesen kialakított azonnal költözhető!Hévíz zöldövezeti csendes részén található ez a dombos délkeleti fekvésű panorámás telek, ezen épült a három, 75 m2 hasznos alapterületű, egyszintes lakóépület. A hozzá tartozó udvarrészben kerti tároló is helyet kapott.Az ingatlanban található: előszoba, nappali – étkező – konyha, háztartási helyiség, zuhanyzó/WC, közlekedő, 3 db hálószoba, fürdőkádas fürdőszoba WC-vel.A nagy nappalihoz kertkapcsolatos épített terasz tartozik, zöld területtel, automata locsolórendszerrel.A kültéri 2 db gépkocsi beálló viacolor burkolattal készült.Műanyag nyílászárók modern, 3 rétegű üvegezéssel, elektromos redőnyökkel, szúnyoghálókkal felszereltek.A homlokzat 20 cm vastag, EPS hőszigetelő rendszert kapott.Minden helyiségben hőszivattyús hűtés-fűtés rendszer került kialakításra, külön hőfokszabályzással, 6 KW-os napelem rendszert is kapott az ingatlan szaldós elszámolással.A hűtést illetve a fűtést minden helyiségben bárhonnan külön telefonról lehet irányítani, úgyszintén a napelemes rendszert is!Kerámia burkolattal ellátott helyiségeknél padlófűtés növeli a komfortérzetet.Héjvédelmi riasztással ellátva.A modern építészeti megoldásoknak és a napelemnek köszönhetően, nagyon alacsony a fenntartási költsėg!Hívjon, hogy az öné lehessen!
További adatok
Telekterület: 174 m2
Kert mérete: 174 m2
Erkély mérete: -
Felszereltség: -
Parkolás: -
Kilátás: -
Egyéb extrák:  
-
Hirdető adatai
Hirdető neve: Otthon Centrum
Kapcsolattartó: Poldauf Róbert
Hirdető telefonszáma: +36 70 469 3266
Honlap: -