Fejér megye, Lovasberény
 

Ingatlan adatai
Irányár: 92 000 000 Ft
Típus: ház
Kategória: eladó
Alapterület: 124 m2
Fűtés: -
Állapota: új
Szobák száma: 5
Építés éve: 2026
Szintek száma: -
Részletes leírás
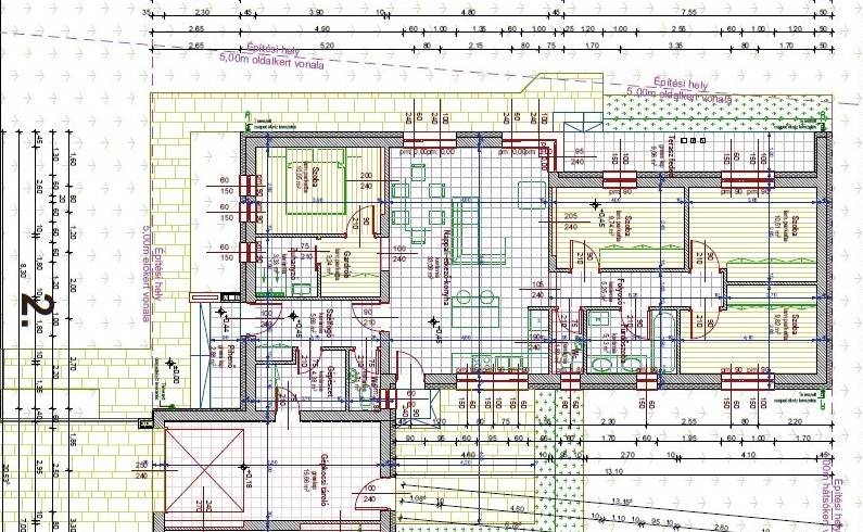
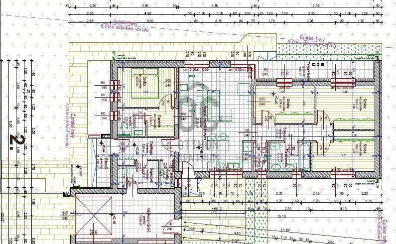
Amennyiben Ön számára fontos a kényelem, a minőség, és a természet közelsége, akkor ez a modern kialakítású, földszintes ikerház ideális választás lehet Ön és családja számára!Az ingatlan a Velencei-tó közelében, Lovasberény egyik legújabb, csendes, panorámás lakóövezetében található. Az ikerház földszintes kialakítású, saját kertrésszel és közvetlen kertkapcsolattal rendelkezik, így tökéletes választás kisgyermekes családok vagy akár idősebbek számára is.Főbb jellemzők:•Bruttó alapterület: 136 m²•Nettó lakótér: 105 m²•Garázs: 20 m²•Fedett terasz: 11 m²•Telekrész: 360 m² (saját használatú)• 4 hálószoba• Amerika konyhás nappaliAz ingatlan praktikus elrendezésű, 4 kényelmes hálószobával, külön gardróbszobával, két fürdőszobával, külön WC-vel, gépészeti helyiséggel, valamint tágas, világos amerikai konyhás nappalival rendelkezik, ahol a nagy méretű ablakok kellemes térérzetet biztosítanak.Jelenleg az építkezés 40%-os készültségi szinten áll, így a belső kialakítás még egyéni igények szerint módosítható. - Műszaki tartalom -Alapozás: Vasbeton sávalap (50 cm széles, 110 cm mély), a lábazati talpgerenda 30 cm vastag, 50 cm magas. Monolit vasbeton talpgerendák, 12 cm vastag lemezbeton acél térhálóval.Falazat: Teherhordó főfalak: Leier 30 N+F falazóblokkKiegészítő tartófalak: Leier 25 N+F és 20 N+F elemekFödém: Hagyományos, borított fagerendás szerkezet, gipszkarton borítással, direkt függesztett szerelőprofillal.Tetőszerkezet: Modern félnyeregtetős kialakítás, 15x15 cm-es szelemenekkel. Antracit színű, horganyzott acél ereszcsatorna és lefolyórendszer.Nyílászárók: Gealan márkájú, 3 rétegű hőszigetelő üvegezéssel ellátott műanyag ablakok (kívül dió, belül fehér). Rejtett tokos redőnyök, azonos színű bejárati ajtó.Hőszigetelés - Padló: 15 cm EPS, vizes helyiségekben XPS, Homlokzat: 15 cm Dryvit rendszer, Födém: 35 cm kőzetgyapot, légzáró fóliávalBurkolatok:•Melegpadlós helyiségekben laminált parketta •Egyéb helyiségekben kerámia burkolat•Vizes helyiségekben 2,1 m magasságig csempeHőszivattyús rendszer, teljes padlófűtés, hűtő-fűtő klíma a hálószobákban, nappaliban.Fürdőszobában csaptelepek, szaniterek kerülnekVárható átadás 2026. augusztus.Lovasberény rendkívül jól megközelíthető mind autóval, mind tömegközlekedéssel. Székesfehérvártól mindössze 15 km-re található, kb. 15-20 perc autóval. Budapest is gyorsan elérhető az M7-es autópályán keresztül, körülbelül 45-50 percnyi autóútra. A települést rendszeres buszjáratok kötik össze Székesfehérvárral, így akár autó nélkül is könnyen elérhető a város.A legközelebbi barátságos község, Csákvár és Nadap is csak 10km távolságra található, a Velencei-tó 20 perc autóútnyira.A község rendezett, barátságos lakóközösséggel, óvodával, iskolával, egészségügyi ellátással és alapvető szolgáltatásokkal. Az utóbbi években egyre többen választják Lovasberényt állandó otthonuknak, így a település értéke és népszerűsége folyamatosan nő.Az ingatlan megfelel CSOK+, Falusi CSOK igénybevételére, cégünk pedig díjmentesen segít az ügyintézésben.Hívjon bizalommal, és ne hagyja ki ezt a lehetőséget, hogy saját otthonát ebben a modern, útépítésű házban alakítsa ki!Ez az ingatlan nem csak egy új otthon lehet, hanem egy hosszú távon is értékálló választás!Az ingatlanról további információval szolgálhatok elérhetőségeim valamelyikén.
További adatok
Telekterület: 360 m2
Kert mérete: 360 m2
Erkély mérete: 12 m2
Felszereltség: -
Parkolás: -
Kilátás: -
Egyéb extrák:  
-
Hirdető adatai
Hirdető neve: Otthon Centrum
Kapcsolattartó: Jankovics Szilvia
Hirdető telefonszáma: +36 70 388 5121
Honlap: -