Pest megye, Gödöllő
 

Ingatlan adatai
Irányár: 123 000 000 Ft
Típus: ház
Kategória: eladó
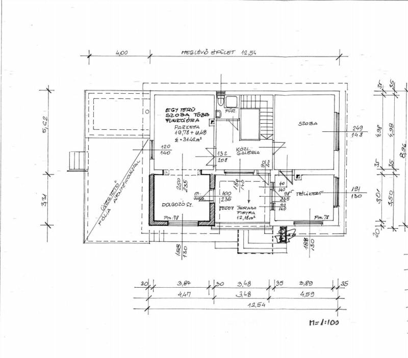
Alapterület: 208 m2
Fűtés: -
Állapota: -
Szobák száma: 4
Építés éve: 1985
Szintek száma: -
Részletes leírás
Eladóvá vált Gödöllő egyik csendes, kertvárosi részén egy kétszintes, kb 200 m²-es családi ház, amely családok és vállalkozók számára is jó választás!Az udvarban még három épület található ami akásként lett kialakítva, jelenleg is bérlőkkel.Főbb jellemzők:a fő épületben...- 4 szoba, nappali-hall, étkező és konyha- Két fürdőszoba,- fedett, de nyitható emeleti terasz a földszintin kívül- Modern, elektromos redőnyökkel felszerelt ablakok- kazánház - három külön szoba- konyhás-fürdőszobás épületés garázs- Méretes, 823 m²-es telek, - Csendes utca, barátságos szomszédságKiváló választás családoknak:- Tágas terek, több generáció számára is alkalmas- Közeli iskola, óvoda, játszótér és bolt- Nyugodt, biztonságos környékIdeális vállalkozóknak is:- nagy terek a főépületben- 4 külön lakáscélú ingatlan- Külön mérőórák, parkolási lehetőség az udvarban- Könnyű megközelíthetőség – M3 autópálya, HÉV, buszjáratokAz épület szerkezetileg kiváló állapotban van, felújjítással, modernizálással a saját igényekre szabható.Az épület hitelre megvásárolható, hitelügyintézésben segítünk!Megtekintés miatt kérem telefonon keressen!H504875
További adatok
Telekterület: 823 m2
Kert mérete: 823 m2
Erkély mérete: 12 m2
Felszereltség: -
Parkolás: -
Kilátás: -
Egyéb extrák:  
-
Hirdető adatai
Hirdető neve: Otthon Centrum
Kapcsolattartó: Lippai Gabriella
Hirdető telefonszáma: +36 70 412 3341
Honlap: -