Heves megye, Tiszanána
 

Ingatlan adatai
Irányár: 55 000 000 Ft
Típus: ház
Kategória: eladó
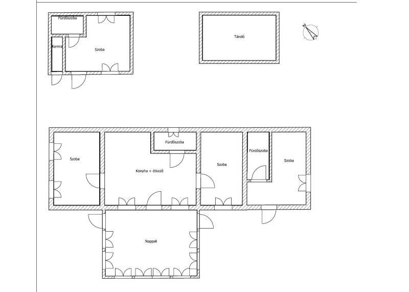
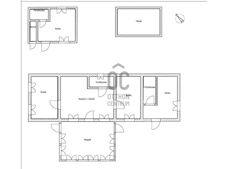
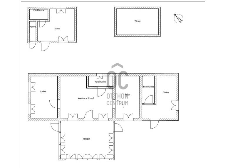
Alapterület: 96 m2
Fűtés: elektromos
Állapota: -
Szobák száma: 4
Építés éve: 2000
Szintek száma: -
Részletes leírás
Tiszanána-Dinnyéshát a Tisza-tó Heves vármegyei oldalán, Sarud és Kisköre között helyezkedik el. A üdülőterületen minden megtalálható, ami a vízzel kapcsolatos. Az egyik legszebb és legnyugodtabb strand és kikötő itt található. A MAHART által üzemeltetett sétahajók ebben a kikötőben is megállnak, melyek Tiszalöktől Kisköréig közlekednek szezonban.Az ingatlan csendes utcában, közel a strandhoz és kikötőhözhelyezkedik el.Az eladásra kínált ingatlan két helyrajzi számon található két nyaralóépület. Az egyik egy Ytong falazóelemekből épült nyaraló, három szobával két fürdőszobával, nagy világos nappalival és nagy konyha-étkezővel. A hűtésről fűtésről klíma gondoskodik.A másik épület fából épült egy szobát és fürdőszobát, valamint kamrát tartalmaz.Található még az udvaron egy tároló is.A nagy dupla udvar igazi kuriózum, hőszivattyús úszómedencével, dézsafürdővel, valamint egy vendégváró kerti kemencével, grillsütővel. A gépkocsik nyitott beállóban parkolhatnak.Az ingatlanok alapterülete 96 nm, a telek összesen 1652 nm.Az ingatlan akár két család kényelmes pihenését is szolgálhatja, de akár apartmanként is kiváló befektetés lehet.Díjmentes jogi szolgáltatásokkal és ingyenes bank független hitelközvetítéssel állunk vevőink rendelkezésre!Várom megkeresését!
További adatok
Telekterület: 1 652 m2
Kert mérete: 1 652 m2
Erkély mérete: 25 m2
Felszereltség: -
Parkolás: -
Kilátás: -
Egyéb extrák:  
-
Hirdető adatai
Hirdető neve: Otthon Centrum
Kapcsolattartó: Lang Zsolt
Hirdető telefonszáma: +36 70 412 3651
Honlap: -