Vas megye, Szombathely
 

Ingatlan adatai
Irányár: 86 900 000 Ft
Típus: ház
Kategória: eladó
Alapterület: 91 m2
Fűtés: gáz (cirko)
Állapota: új
Szobák száma: 5
Építés éve: 2026
Szintek száma: -
Részletes leírás
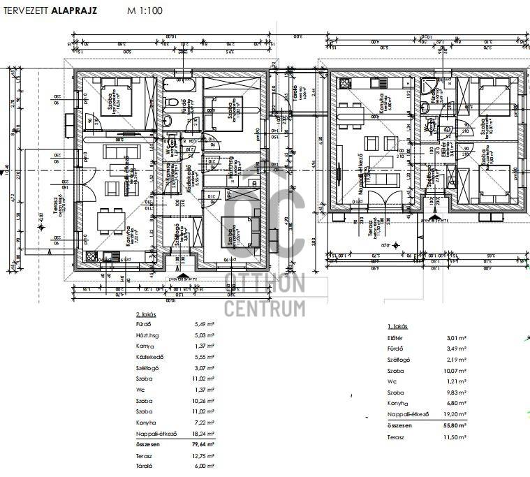
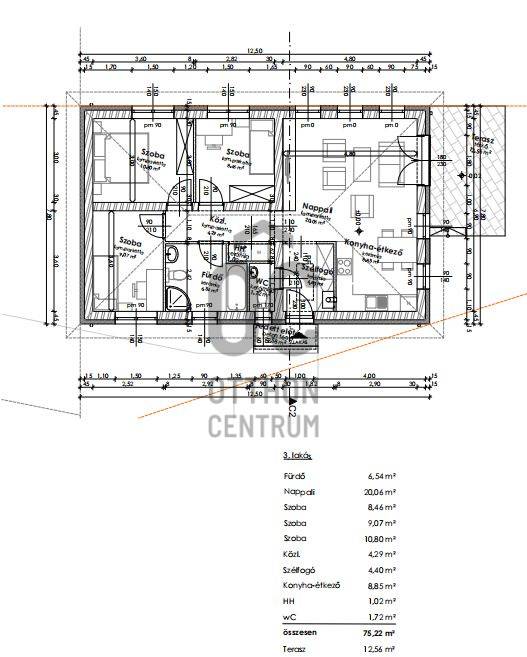
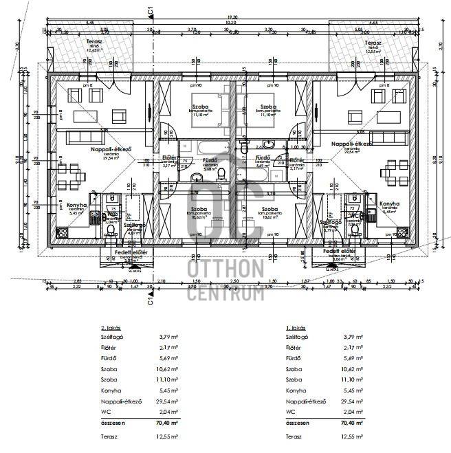
Plató I. projektSzombathelyen új építésű ikerház eladó!Új építésű ikerház eladó Szombathelyen, az Oladi városrészen.Egy modern ikerház egyik felét kínálom, amelyet 2026-ban vehet birtokba.A 90,73 négyzetméteres lakótér minden részlete átgondolt: négy kényelmes hálószoba, egy tágas, világos nappali, amely egy légtérben helyezkedik el a konyha-étkezővel. Innen közvetlenül kiléphet a 12 négyzetméteres teraszra, ahol reggeli kávé, baráti beszélgetések, vagy egy csendes este is jól esik. Az ingatlanban két fürdőszoba kapott helyet.Praktikus és otthonos megoldások.Az ingatlan nemcsak szép, hanem magas minőségű műszaki tartalommal is épül: téglaépítésű, 15 cm-es szigeteléssel, korszerű BOSCH kombi kazánnal /padlófűtés/ és háromrétegű műanyag nyílászárókkal, amelyek kiváló hő- és hangszigetelést biztosítanak. A házba klíma is beépítésre kerül.A hozzá tartozó 774 négyzetméteres kertet úgy alakíthatja ki, ahogy szeretné – legyen az egy veteményes, játszórész, vagy éppen egy hangulatos kerti sütögető.Ez az otthon ideális választás lehet, ha csendes környezetre, mégis városhoz közeli, modern életstílusra vágyik. Ha úgy érzi szívesen élne itt, kérem keressen, beszéljük át a részleteket!✅ 90,73 m²-es lakótér + 12 m² terasz✅ 4 hálószoba, nappali-étkező-konyha egy légtérben✅ 2 fürdőszoba ✅ közvetlen kertkapcsolat a nappaliból✅ 774 m² saját kert – ideális családosoknak, vagy kertészkedni vágyóknak✅ téglaépítésű, 15 cm hőszigeteléssel✅ 3 rétegű műanyag nyílászárók✅ BOSCH kondenzációs kazán + padlófűtés✅ beépített klíma✅ 2026-os átadásAz ingatlan modern műszaki tartalommal, energiatakarékos kialakítással készül, kellemes, csendes környezetben.TOVÁBBI LEHETŐSÉGEK!Új építésű ikerházak eladók Szombathelyen, az Oladi városrészen:- több méretben kerülnek megépítésre: 47 nm-től akár 90 nm-ig- telek méretek: 228 nm-től 774 nm-ig- nappali+ 2, illetve nappali +3 szobás kivitelezésselNe maradjon le , keressen bizalommal!Hitelre van szüksége? Az Otthon Centrum az ország egyik legnagyobb és legmegbízhatóbb hitelközvetítőjeként, teljes körű és díjmentes hitel ügyintézéssel, biztosításkötéssel áll rendelkezésére! Kérje személyre szabott ajánlatunkat Kollégáinktól!Válassza ki az Önnek legmegfelelőbbet.Projekt bemutatásaSzombathelyen új építésű ikerházak eladók!Új építésű ikerházak eladók Szombathelyen, az Oladi városrészen:- több méretben kerülnek megépítésre: 47 nm-től akár 90 nm-ig- telek méretek: 228 nm-től 774 nm-ig- nappali+ 2, illetve nappali +3 szobás kivitelezéssel Az ingatlanok magas minőségű műszaki tartalommal épülnek: tégla falazat, 15 cm-es homlokzati szigetelés, korszerű BOSCH kombi kazán /padlófűtés/ és háromrétegű műanyag nyílászárók, amelyek kiváló hő- és hangszigetelést biztosítanak. A házakban klíma is beépítésre kerül.Ez az otthon ideális választás lehet, ha csendes környezetre, mégis városhoz közeli, modern életstílusra vágyik. Ha úgy érzi szívesen élne itt, kérem keressen, beszéljük át a részleteket!✅ 47-90 m²-es lakótér + terasz✅ 2-3 hálószoba, nappali-étkező-konyha egy légtérben✅ fürdőszoba + külön WC✅ közvetlen kertkapcsolat a nappaliból✅ 228-774 m² saját kert – ideális családosoknak, vagy kertészkedni vágyóknak✅ téglaépítésű, 15 cm hőszigeteléssel✅ 3 rétegű műanyag nyílászárók✅ BOSCH kondenzációs kazán + padlófűtés✅ beépített klíma✅ 2026-os átadásAz ingatlanok modern műszaki tartalommal, energiatakarékos kialakítással készülnek, kellemes, csendes környezetben.Ne maradjon le , keressen bizalommal!
További adatok
Telekterület: 774 m2
Kert mérete: 774 m2
Erkély mérete: 12 m2
Felszereltség: -
Parkolás: -
Kilátás: -
Egyéb extrák:  
-
Hirdető adatai
Hirdető neve: Otthon Centrum
Kapcsolattartó: Kozicsné Balkó Anikó
Hirdető telefonszáma: +36 70 461 9621
Honlap: -