Somogy megye, Zamárdi
 

Ingatlan adatai
Irányár: 134 900 000 Ft
Típus: ház
Kategória: eladó
Alapterület: 109 m2
Fűtés: -
Állapota: új
Szobák száma: 5
Építés éve: 2025
Szintek száma: -
Részletes leírás
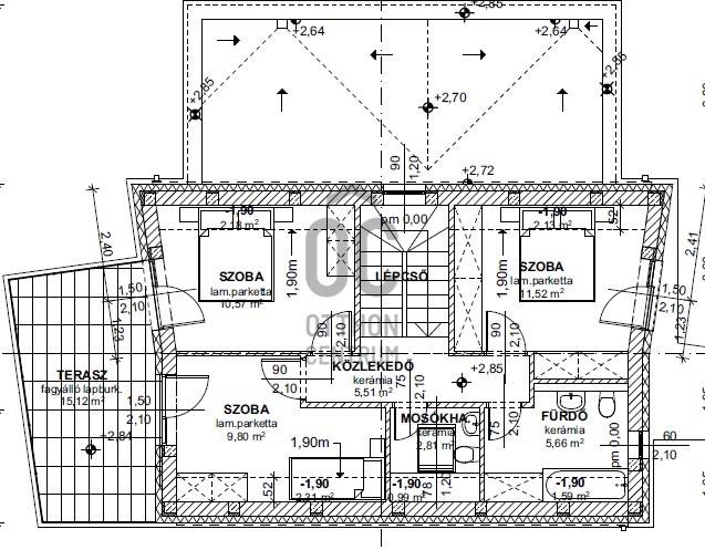
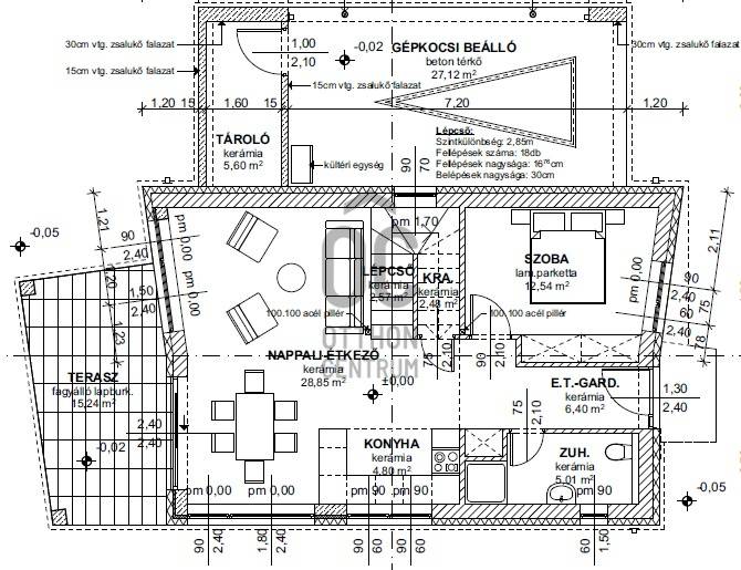
Zamárdiban eladó önálló telken 2 darab újépítésű családi ház, 2 szinten nappali + 4 szobával, 2 fürdőszobával. Házanként egy darab felszíni beállóval, amelyet a feltüntetett vételár már tartalmaz.A házakhoz a földszinten is és az emeleten is 25 négyzetméter terasz tartozik.Várható átadás 2025 december.A házak az új, kedvezményes, Otthon start, 3% kamatozású hitellel is megvásárolhatók!További részletekért hívjon most!
További adatok
Telekterület: 750 m2
Kert mérete: 750 m2
Erkély mérete: 30 m2
Felszereltség: -
Parkolás: -
Kilátás: -
Egyéb extrák:  
-
Hirdető adatai
Hirdető neve: Otthon Centrum
Kapcsolattartó: Gáborjányi Attila
Hirdető telefonszáma: +36 70 716 9491
Honlap: -