Győr-Moson-Sopron megye, Rábapatona
 

Ingatlan adatai
Irányár: 99 900 000 Ft
Típus: ház
Kategória: eladó
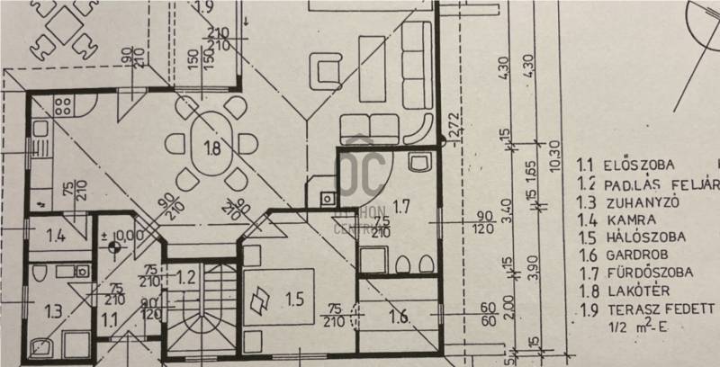
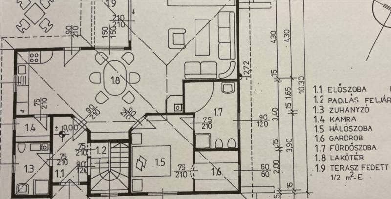
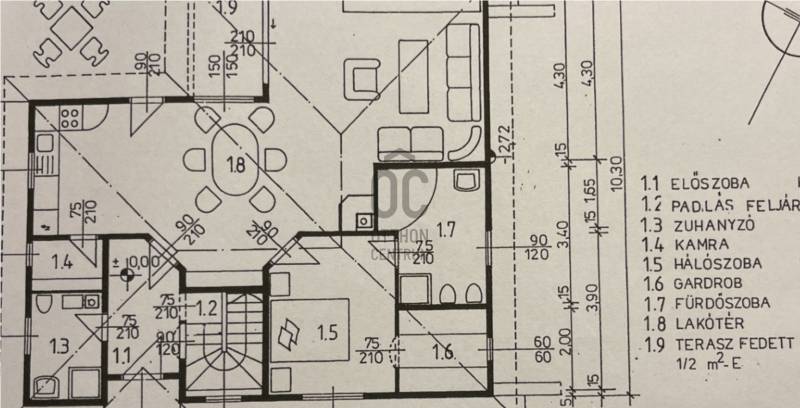
Alapterület: 130 m2
Fűtés: gáz (cirko)
Állapota: -
Szobák száma: 5
Építés éve: 1995
Szintek száma: -
Részletes leírás
Csak Nálunk, csak az OTTHON CENTRUMNÁL kínálom eladásra a képeken látható Rábapatonai családi házat.Ha igazán egyedi lehetőségekre vágysz! Varázslatos környezetben, domb tetején családi ház, tóra néző kilátással.És még a vállalkozásod is könnyen elfér az otthonodban, akkor most jól figyelj, mert ez a ház lehet hogy Neked szól.- 1600 m2-es telek- 90 m2-es lakótér + terasz + alagsor ami akár orvosi rendelőnek, kozmetikának, üzemnek vagy bármi új üzlet nyitására alkalmas!Vagy akár lakrész is kialakítható belőle, minden lehetőség adott! - a ház 1 hálószobával rendelkezik amihez tartozik egy fürdő illetve gardrób is.- kiváló elrendezés, világos terek- a nappaliból és a konyhából kijutunk a napsütötte teraszra, amiről télen nyáron páratlan kilátás nyílik a tóra és a mesés, impozáns telekre - klimatizált- az otthon melegét padlófűtés biztosítja- modern, műszaki kivitelezés miatt a ház fenntartása nagyon minimális- elektromos kapu- meseszerű, parkosított udvarA ház kiváló állapotú, ráfordítás mentesen azonnal költözhető, birtokba vehető!Ha szeretnéd érezni a természet közelségét ebben a szép és élhető terekkel rendelkező családi házban, hívj és mutatom, elérhető vagyok a hét mindennapján!Hitelre van szüksége?Az Otthon Centrum az ország egyik legnagyobb és legmegbízhatóbb hitelközvetítőjeként,teljes körű és díjmentes hitelügyintézéssel, biztosításkötéssel áll rendelkezésére!Kérje személyre szabott ajánlatunkat Kollégáinktól!
További adatok
Telekterület: 1 640 m2
Kert mérete: 1 640 m2
Erkély mérete: -
Felszereltség: -
Parkolás: -
Kilátás: -
Egyéb extrák:  
-
Hirdető adatai
Hirdető neve: Otthon Centrum
Kapcsolattartó: Tatai Zsuzsanna
Hirdető telefonszáma: +36 70 716 8421
Honlap: -