Részletes leírás
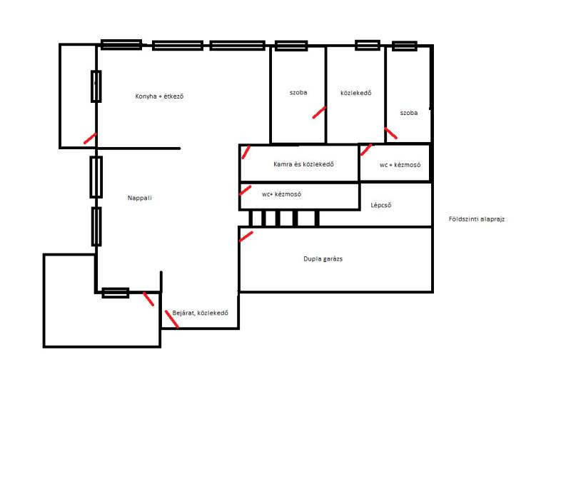
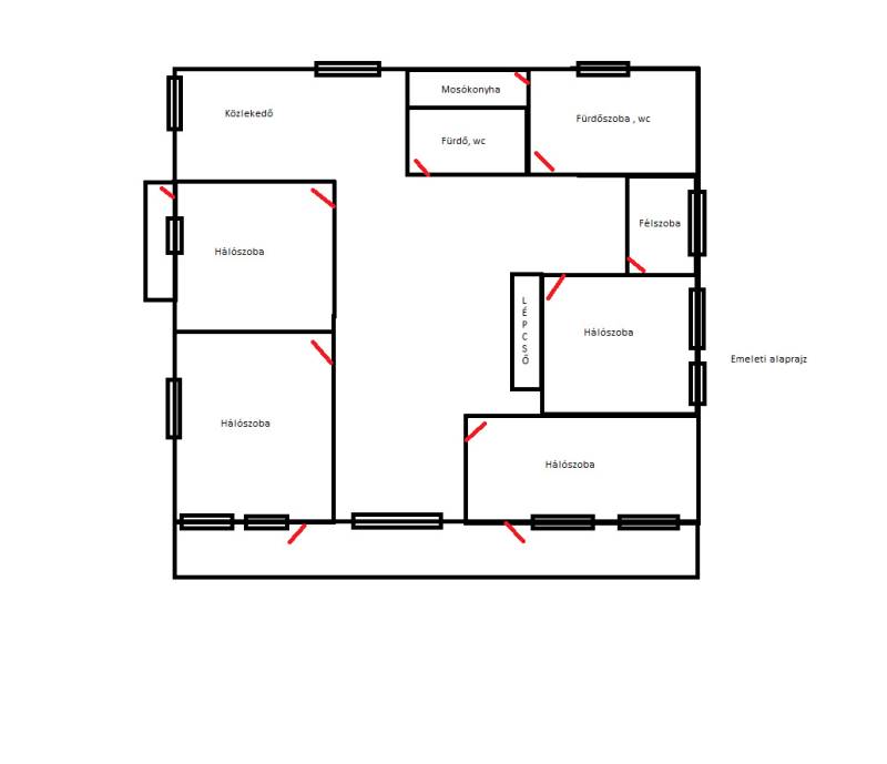
Keszthely festői városában, a legkedveltebb zámori részen kínálunk eladásra egy jó állapotú házat, amely ideális választás magán- és befektetési célokra egyaránt.Az ingatlan főbb jellemzői:- Alapterülete 220 nm- Rendezett parkosított kert 1004nm- Az emeleten : 5 tágas hálószobával , 2 fürdőszobával , mosókonyhával rendelkezik, amelyek mindegyike világos és napfényes, így tökéletes otthont biztosít családok számára.- Alsó szinten: dupla garázs, wc kézmosóval, tágas nappali , konyha-étkező, kamra található.- Ezen kívül az alsó szinten egy szoba , egy wc kézmosóval illetve még egy helyiség áll rendelkezésre , amely akár több generáció együttélését lehetővé teszi.- Az ingatlanhoz egy garázs is tartozik, amely két autó kényelmes tárolását biztosít.- A fűtés gázcirkó rendszerrel megoldott, ami kellemes hőmérsékletet garantál a hideg téli hónapokban is.- Az ingatlan tehermentes, így azonnal birtokba vehető.- Balaton-part 500 m távolságra található.A környék előnyei közé tartozik a kitűnő közlekedés, hiszen a város központja és a közeli szolgáltatások könnyen megközelíthetők.A tömegközlekedési lehetőségek széles választéka biztosítja, hogy a város bármely pontjára gyorsan eljuthasson.Keszthely híres a gyönyörű Balaton-partjáról, amely csupán néhány perces séta távolságra található, így a nyári hónapokban a vízparti programok könnyen elérhetők.A csendes környék nemcsak a pihenésre vágyóknak ideális, hanem a családok számára is, hiszen biztonságos környezetet biztosít a gyermekek számára.A közelben található boltok mind hozzájárulnak ahhoz, hogy a mindennapi élet egyszerűbb és kényelmesebb legyen.A rendezett kert lehetőséget ad a szabadban való időtöltésre, ahol akár a gyerekek is biztonságosan játszhatnak.Ez a kiváló ingatlan nemcsak a kényelmet, hanem a modern életstílust is megtestesíti, így ideális választás lehet Önnek, ha egy új otthont keres vagy befektetési lehetőséget fontolgat.Kérjük, ne habozzon, hiszen egy ilyen lehetőség gyorsan elkelhet!Bármilyen kérdése van az ingatlannal kapcsolatban, bizalommal keressen minket, és örömmel állunk rendelkezésére.