Budapest, VI.kerület
 

Ingatlan adatai
Irányár: 48 000 000 Ft
Típus: kereskedelmi/ipari ingatlan
Kategória: eladó
Alapterület: 139 m2
Fűtés: -
Állapota: -
Szobák száma: -
Építés éve: 1920
Szintek száma: -
Részletes leírás
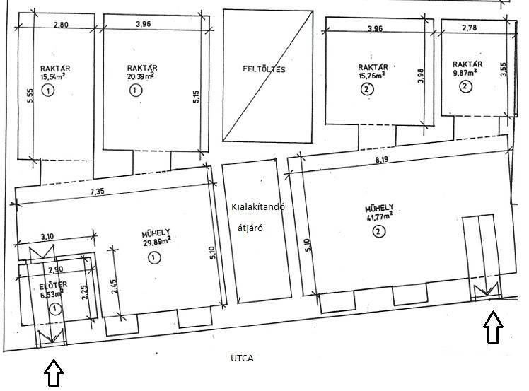
- Kitűnő közlekedési feltételek mellett, M1 Metro- Nagy méretű, 72 + 67 nm, több helyiségből álló, két helyrajzi számmal rendelkező műhely, mely kis átalakítással egybe nyitható- Utcáról megközelíthető, két külön bejárattal- Közművekkel ellátott- Felújitandó- Több hasznosításra alkalmas, felújítás esetén üzletnek, kávézónak, cégképviseletnek, bemutatóteremnek, műhelyként hasznosítható- A társasház tetőterében luxus lakások lesznek kialakítva, vélhetően igény lehet a továbbiakban a társasház részére akár fitnesz teremre, akár bármilyen közösségi térre is kiválóan alkalmas az ingatlan.Amennyiben a belvárosban, bejárattalközponti helyen keres, több célra alkalmas kitűnő ár-értékarányú nagy alapterületű felújítandó műhelyt, üzlethelyiséget, várom megtisztelő megkeresését.
További adatok
Telekterület: -
Kert mérete: -
Erkély mérete: -
Felszereltség: -
Parkolás: -
Kilátás: -
Egyéb extrák:  
-
Hirdető adatai
Hirdető neve: Otthon Centrum
Kapcsolattartó: Varga Olga
Hirdető telefonszáma: +36 70 469 3806
Honlap: -