Hajdú-Bihar megye, Bocskaikert
 

Ingatlan adatai
Irányár: 74 900 000 Ft
Típus: ház
Kategória: eladó
Alapterület: 77 m2
Fűtés: gáz (cirko)
Állapota: új
Szobák száma: 4
Építés éve: 2026
Szintek száma: -
Részletes leírás
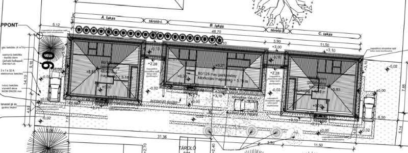
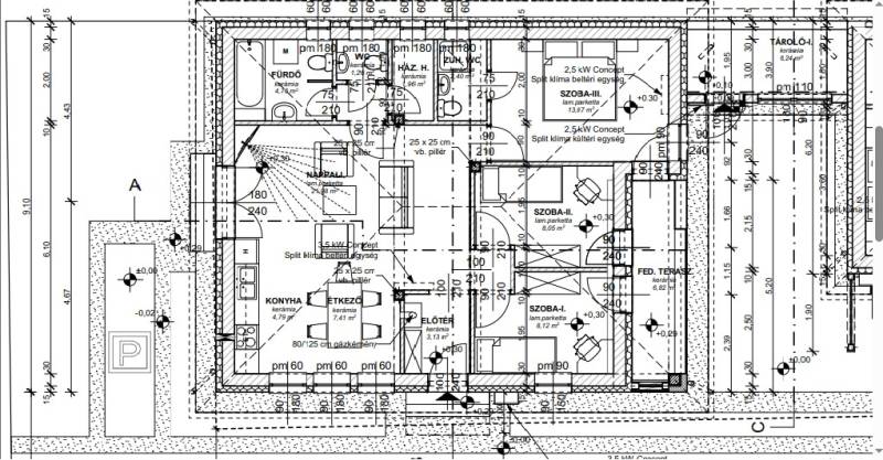
Bocskaikert központjában 2026. tavaszi átadással eladó egy nettó 75 m2-es, földszintes, nappali-amerikai konyha - étkező + 3 külön nyíló szobás ház, saját kis kertrésszel, gépkocsibeállóval, az alábbi paraméterekkel:-Nappali-amerikai konyha + 3 külön nyíló szoba -Földszintes kialakítás-Porotherm 30 falazóblokkból + 15 cm hőszigetelés-Gázcirkó fűtés, igény szerint padlófűtés-Betoncserép fedés-Fedett terasz, épített tároló-Saját kertrész, gépkocsibeállási lehetőséggel-Második gépkocsinak van hely az épület előtt-Klíma, 3 rétegű, hőszigetelt műanyag nyílászárók, minimális rezsi-Társasház alapító okirattal, önálló helyrajzi számra kerülő lakások, CSOK+ alkalmasak-A lakóegységek csak a tárolóknál csatlakoznak, ebből fakadóan a lakások teljesen különálló épületek, külön tetőszerkezettel-Az átgondolt tervezésnek köszönhetően dupla komfortos ingatlanok épülnek, a szülői hálóból külön zuhanyzó és WC nyílik a közös fürdőszoba mellett. A különálló 2. WC mellett még egy háztartási helyiség is helyet kapott.-A tárolónak vasbeton alap készül, egybe lesz öntve az épülettel, igényesen kerül kivitelezésre-A középső lakásban a szülői hálóban master bedroom kerül kialakításra, gardrób és fürdő épül, a konyhából pedig egy kamra és háztartási helyiség is nyílik.Minden helyi célpont kényelmes sétatávolságra található, Debrecen központja még a reggeli csúcsban is 13 perc alatt elérhető. Az építkezés elkezdődött, 2026. tavaszán költözhető, hitel, CSOK+ igényelhető.Részletes műszaki tartalommal, megtekintési időponttal kapcsolatban várjuk hívását a hét minden napján!
További adatok
Telekterület: 70 m2
Kert mérete: 70 m2
Erkély mérete: 7 m2
Felszereltség: -
Parkolás: -
Kilátás: -
Egyéb extrák:  
-
Hirdető adatai
Hirdető neve: Otthon Centrum
Kapcsolattartó: Eitler Péter
Hirdető telefonszáma: +36 70 716 9546
Honlap: -