Budapest, XXII.kerület
 

Ingatlan adatai
Irányár: 349 000 000 Ft
Típus: ház
Kategória: eladó
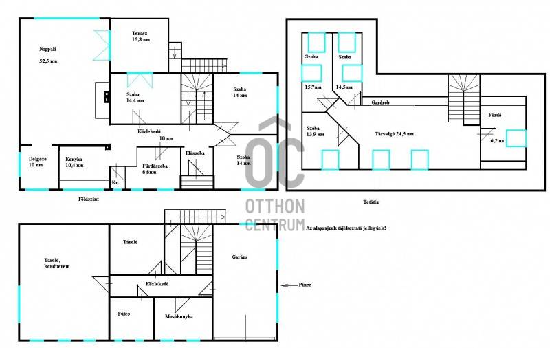
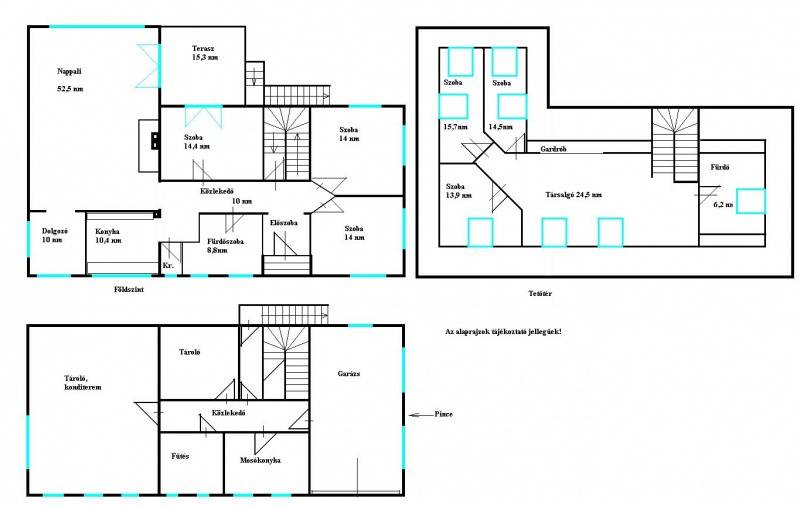
Alapterület: 300 m2
Fűtés: gáz (cirko)
Állapota: -
Szobák száma: 9
Építés éve: 2001
Szintek száma: -
Részletes leírás
Luxus Családi Ház Különleges Extrákkal – XXII. kerületKépzelje el, hogy mindennapjaikat egy olyan újszerű, prémium minőségű családi házban tölti, amely minden igényt kielégít, miközben a kényelem minden apró részletében jelen van. Ez az ingatlan egyedülálló lehetőséget kínál egy tágas, 1284 m²-es telken, a XXII. kerület csendes, de mégis kitűnő közlekedési lehetőségekkel rendelkező részén.Főbb jellemzők:9 tágas szoba, melyek mindegyike a kényelmet szolgálja.A nappali étkező ideális a családi összejövetelekhez, baráti vacsorákhoz, mindezt egy hangulatos kandalló meleg fényénél. Az üvegfalaknak köszönhetően a tér valódi kapcsolatban áll a külvilággal.Konditerem – otthoni edzésre, testmozgásra tökéletesen alkalmas helyiség.Padlófűtés a maximális komfortért.Terasz és intim kert – tökéletes helyszín a grillezéshez, vagy egy nyugodt, pihentető délutánhoz.Mosókonyha – praktikus és különálló helyiség, hogy a napi háztartási feladatok ne zavarják a lakás kényelmét.Garázs – zárt parkolóhely a család autóinak, kiegészítve a ház kényelmét.Extra jellemzők:Napelemek – környezetbarát és energiahatékony megoldás, amellyel jelentős rezsiköltség megtakarítás érhető el.Kitűnő közlekedés – gyorsan elérhetőek a főbb közlekedési vonalak, iskola, bevásárlóközpontok és egyéb szolgáltatások.Ez a családi ház ideális választás mindazok számára, akik nemcsak otthonra, hanem egy igazi pihenést nyújtó életstílusra vágynak. Az intim kert és a szabadidős lehetőségek (medence, grillezés) tökéletes harmóniában egyesülnek a ház belső terével, így az otthon valódi feltöltődést biztosít.További információkért és megtekintésért keressen bennünket, és tapasztalja meg személyesen ezt az egyedülálló ingatlant!
További adatok
Telekterület: 1 284 m2
Kert mérete: 1 284 m2
Erkély mérete: 15 m2
Felszereltség: -
Parkolás: -
Kilátás: -
Egyéb extrák:  
-
Hirdető adatai
Hirdető neve: Otthon Centrum
Kapcsolattartó: Lengyel Andrea
Hirdető telefonszáma: +36 70 461 9131
Honlap: -