Heves megye, Abasár
 

Ingatlan adatai
Irányár: 29 500 000 Ft
Típus: ház
Kategória: eladó
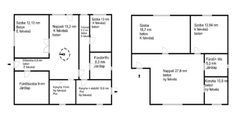
Alapterület: 197 m2
Fűtés: egyéb
Állapota: felújítást igényel
Szobák száma: 4
Építés éve: 1979
Szintek száma: -
Részletes leírás
Családosok, befektetők több generációk együtt élők FIGYELEM! Egy igazán különleges lehetőség vár rád Abasáron, Heves vármegyében, ahol a nyugalom és a természet közelsége tökéletes otthont kínál számodra és családod számára. Az ingatlan, amit most bemutatunk, egy családiház, amely igazi potenciált rejt magában. Az alapterülete 197 nm, a telek mérete pedig 916 nm, így bőven van hely a gyerekeknek a játékra, vagy akár egy szép kert kialakítására is. Ez az az ingatlan amiben akár 3 család is otthonra lelhet teljesen külö bejárattal, konyhával és fürdőszobával!Akár albérlőknek is ki lehet adni a külön bejáratnak köszönhetően, semmiben nem fogják egymást zavarni az ott lakók!A házban négy tágas szoba található, amelyekben a családi élet minden pillanata kényelmesen eltölthető. Említésre méltó ,hogy az egész emeleten padlófűtés lett kialakítva . A világos nappali ideális helyszín a közös programokhoz, míg a három fürdőszoba gondoskodik arról, hogy soha ne legyen sorban állás reggelente. A terasz mérete 3 nm, ahol kellemes reggeliket vagy esti beszélgetéseket tarthattok a szabadban. Fontos megemlíteni, hogy az ingatlan felújítandó, ami lehetőséget ad arra, hogy a saját ízlésed szerint alakítsd ki álmaid otthonát. A környék ellátottsága kiváló, így minden szükséges szolgáltatás, bolt és iskola könnyen elérhető. Abasár egy felkapott település, ahol a csendes, nyugodt életmód találkozik a természet szépségeivel. A közlekedési lehetőségek is kedvezőek: autóval gyorsan elérheted a környező városokat. A közeli buszmegállókból induló járatok segítenek abban, hogy a környező települések is könnyen megközelíthetők legyenek. Az ingatlant készpénzel lehetséges megvásűrolni,befektetési célra egy remek lehetőség. A csendes környék biztonságos, ami különösen fontos a gyerekek számára, hiszen itt szabadon játszhatnak, miközben te nyugodtan pihenhetsz. A természet közelsége és a zöld területek lehetőséget adnak a szabadidős tevékenységekre, kirándulásokra, vagy akár kerékpározásra is. Ne habozz, ha bármilyen kérdésed van az ingatlannal vagy a környékkel kapcsolatban, bizalommal kereshetsz! Érdemes kihasználni ezt a kivételes lehetőséget, hogy egy igazán otthonos, családbarát környezetben élhess. Az álmaid otthona csak egy lépésre van tőled!
További adatok
Telekterület: 916 m2
Kert mérete: 916 m2
Erkély mérete: 3 m2
Felszereltség: -
Parkolás: -
Kilátás: -
Egyéb extrák:  
-
Hirdető adatai
Hirdető neve: Otthon Centrum
Kapcsolattartó: Nagy Zoltánné Zsani
Hirdető telefonszáma: +36 70 469 3286
Honlap: -