Békés megye, Békéscsaba
Békéscsaba, Dr. Becsey Oszkár utca eleje 

Ingatlan adatai
Irányár: 185 000 000 Ft
Típus: ház
Kategória: eladó
Alapterület: 411 m2
Fűtés: gáz (cirko)
Állapota: felújított
Szobák száma: 7
Építés éve: -
Szintek száma: -
Részletes leírás
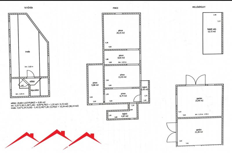
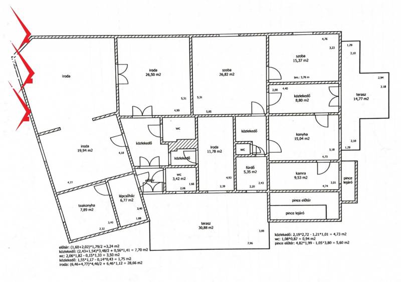
Eladóvá vált a Békéscsaba történelmi - Munkácsy Negyedében -, egyedülálló elhelyezkedéssel, egy igazi gyöngyszem! Az 1906-ban épült a Donner Lajos leányiskola igazgató által tervezett sarokház, mely a Dr. Becsey Oszkár és a Deák utca találkozásánál található. 1936-tól a városi tisztifőorvos otthona volt, hosszú évtizedekig egy alapítvány működött benne.A ház közvetlen szomszédságában található a Vízmű Iskola, az Oliva-Med Magánklinika, egy gyógyszertár, a kórház..... Az utca további házai is nagypolgári épületek, amelyek a környék eleganciáját és történelmi jellegét hangsúlyozzák.Az ingatlan igazi időtálló értéket képvisel, és most egy új tulajdonosra vár!A ház főbb jellemzői:Össz.lakótér: 441 nm (földszint-emelet)Belmagasság: 376 cmTelek: 735 nmHelyiségek: 7 szoba, 2 előszoba, veranda, konyhák, kamra, pince, garázs ......Szobák elrendezése: 3 db 27 nm, 1 db 29 nm, 1 db 20 nm, 1 db 15 nm, 1 db 12 nm 2 konyha (15 nm és 8 nm)2 fürdőszoba, 3 külön WC (köztük egy akadálymentesített) 2 tágas terasz (31 nm és 12 nm) 2 garázs (22 nm és 30 nm, szerelő akna) 69 nm-es pince, eredeti állapotában, 225 cm belmagasság.Fűtés: cirkó és hagyományos gázkazán, hűtő-fűtő klímák az emeleten és földszinten.Az ingatlan története és különlegessége:Az ingatlan két utcáról is rendelkezik bejárattal, parkolóval. A Dr. Becsey Oszkár utca felőli rész 1998-ban teljes felújításon esett át a Gadara Ház számára biztosított helyet. A Deák Ferenc utca felőli rész egy családi otthon, amely különleges hangulatával és tágas tereivel ideális lakóhely. A ház eredeti állapotú pincéje, a magas belmagasság és a történelmi polgári hangulat különleges lehetőséget biztosít a felújításhoz és modernizáláshoz. Kiváló befektetés vagy családi otthon. Ez a történelmi épület nemcsak egyedülálló hangulatot ad, hanem remek lehetőséget kínál a jövőbeli bővítésre, felújításra. A két különálló részből álló ház lehetőséget biztosít arra, hogy többfunkciós ingatlan legyen, amely családi otthonnak, irodának vagy akár szociális intézménynek, egészségközpontnak, iskolának, óvodának, bölcsődének, ügyvédi munkaközösségnek, kiállítóteremnek........ is otthont adhat.Ne hagyja ki ezt a ritka lehetőséget, és tekintse meg személyesen ezt a patinás polgári házat. Hívjon és mesélek még a házról!
További adatok
Telekterület: 735 m2
Kert mérete: 735 m2
Erkély mérete: -
Felszereltség: -
Parkolás: -
Kilátás: -
Egyéb extrák:  
-
Hirdető adatai
Hirdető neve: Alföld Ingatlan Center
Kapcsolattartó: Petruzsán Anikó
Hirdető telefonszáma: +36301538234
Honlap: -