Békés megye, Békéscsaba
Békéscsaba, Aulich 

Ingatlan adatai
Irányár: 63 500 000 Ft
Típus: ház
Kategória: eladó
Alapterület: 150 m2
Fűtés: gáz (cirko)
Állapota: -
Szobák száma: 5
Építés éve: -
Szintek száma: -
Részletes leírás
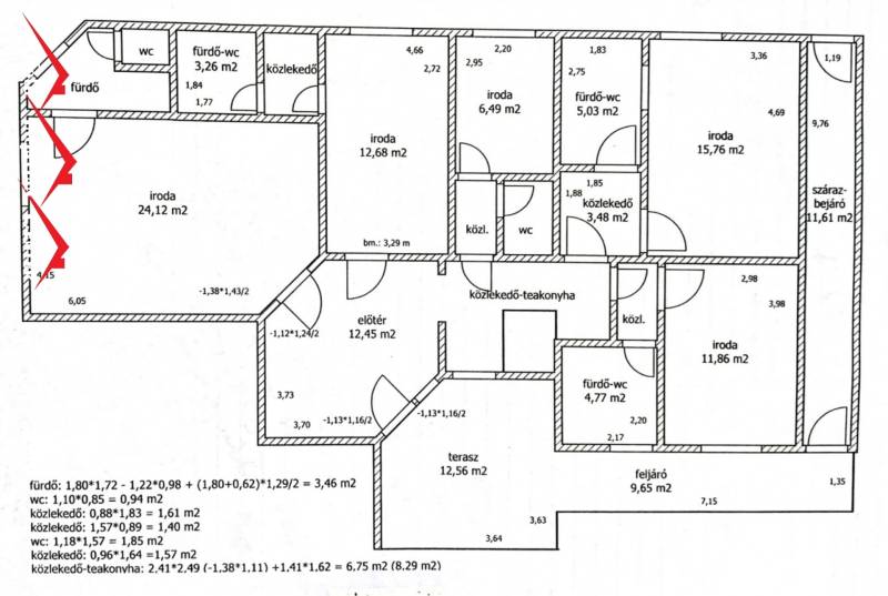
Befektetők figyelem! Eladóvá vált egy jól karbantartott, jó állapotban lévő, tulajdoni lap besorolása szerint -kivett lakóház, udvar. Békéscsaba csendes környezetében, mindössze 200 méterre az Árpád Fürdőtől lévő házban jelenleg egy alapítvány található. Az alaprajzból látható, hogy 5 különálló \"apartman\" részből áll.Minden rész egy közlekedőből nyílik, mindegyikhez tartozik 1 szoba, fürdőszoba és WC.Az ingatlan egy közös étkezővel és főző helyiséggel is rendelkezik, a 12 nm-es fedett terasz, ideális pihenésre. Mozgáskorlátozottak számára akadálymentesített bejárat és rámpa is kiépítésre került. A kiskert ideális kertészkedéshez. A ház előtt 3 személygépkocsi számára parkoló biztosított. Az ingatlan osztatlan közös tulajdon, a tulajdonos társak között kölcsönös elővásárlási joggal. Ez a rész 10/16 tulajdoni hányaddal rendelkezik.(A 6/16 tulajdoni hányad is megvásárolható, 92 nm-es és felújításra szorul, irányára 27.5 MFt.) Jelenleg a benne működő alapítvány 2026. 12. 31-ig marad. A havi bérleti díj vagy a vásárláshoz felvett hitel visszafizetésében nyújt segítséget vagy készpénzes vásárlás esetén egyből passzív bevételhez segíti az új tulajdonost.Bónusz: A padlástér beépíthető, így további bővítési lehetőséget biztosít!Ne hagyja ki ezt a kivételes befektetési lehetőséget! További információkért és megtekintésért keressen minket bizalommal!
További adatok
Telekterület: 425 m2
Kert mérete: 425 m2
Erkély mérete: -
Felszereltség: -
Parkolás: -
Kilátás: -
Egyéb extrák:  
-
Hirdető adatai
Hirdető neve: Alföld Ingatlan Center
Kapcsolattartó: Petruzsán Anikó
Hirdető telefonszáma: +36301538234
Honlap: -