Somogy megye, Vízvár
 

Ingatlan adatai
Irányár: 7 000 000 Ft
Típus: ház
Kategória: eladó
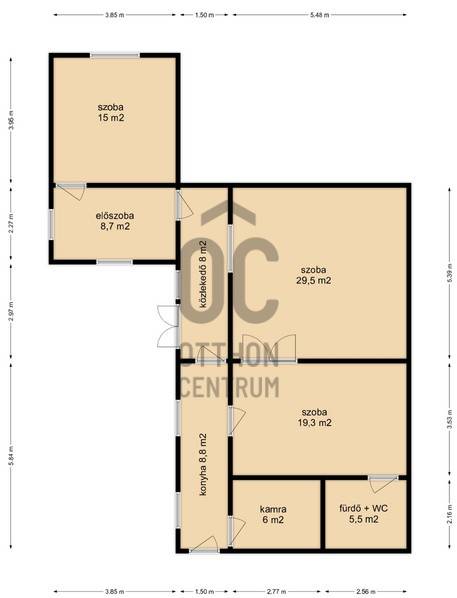
Alapterület: 100 m2
Fűtés: egyéb
Állapota: felújítást igényel
Szobák száma: 3
Építés éve: 1950
Szintek száma: -
Részletes leírás
Fedezze fel ezt a kivételes lehetőséget Somogy vármegyében, Vízváron, ahol egy 100 nm alapterületű, felújítandó ház várja új tulajdonosát. Az ingatlan elhelyezkedése ideális választás mindazok számára, akik csendes, nyugodt környezetben szeretnének élni, miközben a természet közelsége és a vidéki élet varázsa minden nap kíséri őket. A ház három tágas szobával rendelkezik, amelyek remek lehetőséget kínálnak arra, hogy saját ízlésének megfelelően alakítsa ki otthonát. A telek mérete 2640 nm, amely bőséges teret biztosít a szabadidős tevékenységekhez, kertészkedéshez vagy akár egy kis gyümölcsös kialakításához is. A ház fűtése cserépkályhával megoldott, amely nemcsak kellemes meleget biztosít a téli hónapokban, hanem a hagyományos vidéki életstílus részét is képezi. A felújítás során lehetősége nyílik arra, hogy a legújabb trendeknek és saját elképzeléseinek megfelelően alakítsa át az ingatlant, így egyedi otthont varázsolhat belőle. A környék csendes, biztonságos, ideális családok, illetve nyugalomra vágyó egyének számára. Vízvár közlekedési lehetőségei is kedvezőek, hiszen könnyen megközelíthető a város központja, ahol boltok, éttermek és egyéb szolgáltatások várják. A közlekedési lehetőségek között megtalálható a helyi buszjárat, amely gyorsan és kényelmesen eljuttatja Önt a környező településekre, így a napi ingázás sem jelent problémát.A közeli erdők és rétek kiválóan alkalmasak kirándulásra, futásra vagy egyszerűen csak a természet élvezetére. Vízvár barátságos közössége és a környékbeli lakók kedvessége még inkább fokozza az itt élés élményét. Ez az ingatlan nemcsak egy új otthon lehet, hanem egy remek befektetési lehetőség is, amelyben a felújítás során jelentős értéknövekedés érhető el. Kérjük, ne habozzon, ha bármilyen kérdése van az ingatlannal vagy a környékkel kapcsolatban. Bizalommal kereshet minket, hiszen célunk, hogy segítsünk Önnek megtalálni álmai otthonát vagy befektetését. Az ingatlanpiac folyamatosan változik, így érdemes lépéseket tenni a lehetőségek kihasználása érdekében.
További adatok
Telekterület: 2 640 m2
Kert mérete: 2 640 m2
Erkély mérete: -
Felszereltség: -
Parkolás: -
Kilátás: -
Egyéb extrák:  
-
Hirdető adatai
Hirdető neve: Otthon Centrum
Kapcsolattartó: Vucskó Krisztina
Hirdető telefonszáma: +36 70 716 8171
Honlap: -